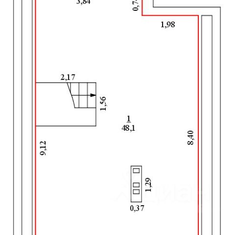
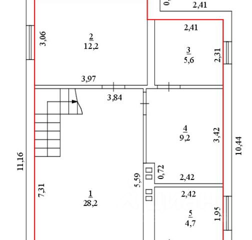
В Октябрьском районе г. Ростова-на-Дону в районе ул. Вавилова продаётся новый кирпичный дом 2024г. в дизайнерском исполнении с мебелью и техникой. Дом полностью готов к жизни — осталось только привезти любимые вещи и насладиться комфортом. B доме 4 спальни, 2 сан узла и просторная кухня-гостиная. Ремонт выполнен в классическом стиле в светлых тонах, что придает элегантность интерьеру, в доме очень много дневного света, использованы качественные материалы, импортная широкоформатная плитка, крашеные стены, декоративная штукатурка и накладки. По всему 1-му этажу дома выполнена разводка тёплого пола и отопления, установлены радиаторы. Продуманное отопление с термостатами и управлением теплыми полами, в каждом помещении. Дом очень тeплый. Выполнена вся инженерная разводка, интернета и телевизионного кабеля по всему дому. Все коммуникации центральные, газ, свет, вода, центральная канализация. Дом построен из облицовочного кирпича + утеплитель и забутовочный кирпич. Мягкая 2х слойная черепица фирмы Shinglаs. Ламинированные 3х камерные окна Установлены автоматические ворота шириной 4,5 метра и калитка с электро механическим замком, парковочное пространство вмещает 2 автомобиля, перед участком дополнительно парковочное место. Ухоженный двор, теплый бассейн с водопадом, вымощен красивой плиткой, высажена молодая хвоя, мобильный мангал, беседка крытая. Удачное расположение, в 5 мин ходьбы школа, садики, остановка, рынок, магазины, дет. поликлиника. Дом подойдет для тех, кто хочет жить в тихом частном секторе, недалеко от центра, при этом в шаговой доступности ко всей инфраструктуре города. Документы на коммуникации и дом оформлены 100%. Документы готовы к продаже. Скорее звоните! Продается дом в микрорайоне Каменка в городе Ростов-на-Дону.






















































































