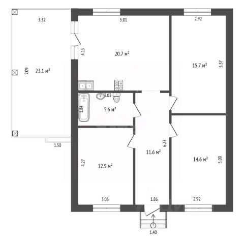
Продается великолепный дом площадью 108 квадратных метров на ухоженном участке земли в 4.4 сотки, расположенный в живописном районе города, в коттеджном поселке закрытого типа "Ваш выбор". Этот уютный дом станет идеальным местом для комфортной жизни вашей семьи! Внутри дома вас ждет продуманная планировка, включающая просторный холл, три светлые спальни, гардеробную для удобного хранения вещей, котельную и совмещенный санузел. Особое внимание стоит уделить просторной кухне-гостиной площадью 22 кв. метра, которая станет центром семейных встреч и праздников. Все коммуникации в доме центральные, что гарантирует вам комфорт и удобство. Весь пол оборудован системой теплого пола, а также предусмотрены выводы под радиаторы, что обеспечит тепло и уют в любое время года. Для вашего удобства установлен современный двухконтурный котел. Качественный керамогранит на полу добавляет дому стиль и практичность. Коттеджный поселок "Ваш выбор" предлагает жителям высокий уровень безопасности: круглосуточная охрана и видеонаблюдение создают атмосферу спокойствия и защищенности. Внутри поселка вы найдете магазины и детскую площадку, что делает жизнь здесь еще более комфортной. Кроме того, в непосредственной близости от дома расположены все необходимые объекты инфраструктуры: магазины "Магнит" и "Пятерочка", рынок, детский сад, школа и поликлиника. Все это делает данный дом идеальным выбором для семей с детьми и людей, ценящих комфорт и удобство. Дополнительно оплачивается комиссия с покупателя. Код пользователя: 168925 Номер в базе: 4841305



















































































