


Каталожный номер — H064916 НЕ ФЕЙК. Без комиссий. Работа от застройщика! Октябрьский, Малинки В продаже готовый дом на участке 6 соток! -Хорошая планировка: три спальни, кухня-столовая 20 кв.м, с/у, котельная, холл. Выход с кухни на террасу. - Фундамент на 350 бетоне, глубина 1.2м, тройное армирование. - Крыша 0.5 металлочерепица; - Окна 70-е, энергосберегающие; -Сейфовая входная дверь; В доме выполнена разводка электрики, штукатурка. В санузле и котельной штукатурка аквапласт. За доп.плату возможно выполнить работы, такие как: устройство теплого пола, стяжка, котел и т.д. в т.ч. и чистовая отделка. Вы можете ознакомиться так же с нашими сданными домами. подходит любая Ипотека: семейная, военная, айти-ипотека. На вопросы ответит: Латышева Валерия Дополнительно оплачивается комиссия с покупателя Ни одной расторгнутой сделки с 1994 года.



Дом площадью 99 кв.м. от Застройщика, сдан в 2025г. Тёплый, кирпичный, предчистовой отделкой! Построен с соблюдением всех технологий. Идеален для комфортной жизни. подходит под ипотеку. Комиссию покупатель не оплачивает! А так же много других готовых домов в наличии. Конструкция дома: -Ленточный фундамент. -Наружные стены: тёплый газоблок+облицовочный кирпич. -Внутренние стены: полнотелый кирпич -прочность и шумоизоляция. Отделка и инженерия: -Отопление: тёплый пол (в зонах плитки). -Установлен двухконтурный котёл. -Отопление и горячая вода. Дополнительно: Подходит под семейную ипотеку, военно-семейную с использованием всех видов сертификатов. Возможно оформление ипотеки без первоначального взноса. -ПРЯМАЯ ПРОДАЖА ОТ ЗАСТРОЙЩИКА. -ПОЛНОЕ СОПРОВОЖДЕНИЕ СДЕЛКИ. -ПОМОЩЬ С ОФОРМЛЕНИЕМ ИПОТЕКИ.
Большой выбор материалов и видов домов от надёжных строительных компаний

Арт. 107389936 Эксклюзивное предложение от АН Домиан Предлагаем вашему вниманию прекрасный участок земли. Шесть соток идеально подойдут для строительства уютного дома вашей мечты. Все необходимые коммуникации удобно расположены по границе участка. Это отличная возможность создать комфортное пространство для жизни за городом. Успейте приобрести этот замечательный участок! Звоните отвечу на все вопросы Юлия . Гарантия безопасной сделки от АН Домиан .



Просторный дом, расположенный на 6 сотках земли 3 комнаты, просторный коридор и большая кухня-гостиная с выходом на террасу В доме выполнена разводка электрики, штукатурка Дом построен исключительно из качественных материалов Документы полностью готовы к продаже! Подходят все виды расчета Звоните, покажем в любое удобное для вас время



Арт. 99732179 Продается земельный участок на поселке Октябрьском, СТ Малинка, 6 соток земли. На участке построен гараж, на 2-м этаже построена комната. Также на участке есть туалет и летний душ. Свет и вода заведены на участок. На участке есть несколько фруктовых деревья и ягодные кусты. Здесь же есть 2 маленьких балагана. Магазины, садик, школа , остановка общественного транспорта в шаговой доступности. Показ в удобное для вас время. На все вопросы по данному объекту ответит специалист по недвижимости Проскурина Ольга Леонидовна. Звоните! Торг реальному покупателю! Рассмотрим все предложения по торгу.



Продаётся новый уютный дом 93м2, сделанный на совесть из качественных материалов. Дом расположен в тихом районе с развитой инфраструктурой, идеально подходит для комфортного проживания семьи. Отличный вариант для тех, кто хочет жить вне городской суеты, сохраняя преимущества расположения внутри городского периметра. По Вашему желанию мы можем сделать дизайнерский проект и ремонт Вашей мечты.



Продается шикарный земельный участок 6 соток в отличном месте. Участок полностью готов к началу строительства — никаких лишних затрат не потребуется. Преимущества: Идеальное местоположение: участок расположен в окружении жилых домов (соседи со всех сторон). Это тихое, ухоженное место с развитой инфраструктурой. Ровный участок: правильной прямоугольной формы, без перепадов высот — экономия на фундаменте и ландшафте. Коммуникации по меже: все необходимые сети подведены к границам участка — подключайся и стройся! Юридическая чистота: документы полностью готовы к сделке. Назначение: участок подходит под строительство жилого дома (возможна льготная ипотека под 6%). Рассмотрим любые формы оплаты, включая ипотеку и материнский капитал. Код пользователя: 197892 Номер в базе: 12120636

Мечтаете о собственном доме в тихом и уютном месте? Вашему вниманию — превосходный участок для строительства! Что вас порадует: -внушительный фасад 30 метров — хватит места для большого и комфортного дома и зоны отдыха; -участок ухоженный — можно сразу приступать к планированию строительства; -тихое и спокойное место: здесь вы забудете о городской суете и сможете наслаждаться свежим воздухом; -надёжные соседи: люди живут здесь постоянно, район безопасный и обжитой; -все необходимые коммуникации подведены по меже — не придётся тратить время и деньги на их подведение издалека; -возможность оформить ипотеку: осуществите мечту о своём доме уже сегодня! Представьте: ваш дом, просторный двор, тишина и покой вокруг. Это не фантазия — это может стать вашей реальностью! Не упустите шанс приобрести участок, где будет построен дом вашей мечты. Звоните, с радостью покажу участок и отвечу на все вопросы.



Код объекта: 2000658. Продается уютный дом с дизайнерским ремонтом от застройщика в активно развивающемся районе СТ Донские Зори! Этот дом, построенный в 2025 году, идеально подходит для комфортного круглогодичного проживания. Надёжный застройщик, на его счету много проданных домов и довольных покупателей. Общая площадь дома составляет 100 кв.м.+25 кв.м. терраса, просторная кухня гостиная площадью 24 квадратных метра. Тёплый по всему дому. Высота потолков в доме составляет 2,8 метра, что создаёт ощущение простора и свободы. Участок площадью 3 соток обеспечен всеми необходимыми коммуникациями: электричеством, водоснабжением, газом и канализацией.Большая придомовая территория, широкий подъезд к участку, что обеспечивает удобный доступ в любое время года. Дом продаётся с ремонтом , что позволяет новым владельцам заехать уже завтра. О доме: • 3 изолированные спальни — идеальное пространство для отдыха и уединения. • В санузле выполнен качественный ремонт. • Просторная кухня-гостиная — место, где можно собираться с семьей и друзьями, готовить и проводить время вместе. • Благоустроенная терраса — прекрасное место для утреннего кофе или вечерних встреч на свежем воздухе. Дом строился с вниманием к каждой детали. Использованы только качественные материалы, а организация пространства продумана до мелочей для вашего удобства и комфорта. Территория участка: Участок огорожен прочным забором с качественными воротами и калиткой. Правильная форма участка открывает множество возможностей для реализации ваших идей в ландшафтном дизайне — создайте свой собственный оазис! Инфраструктура района: Развитая инфраструктура включает в себя сетевые супермаркеты, магазины, пункты выдачи и остановки общественного транспорта. Здесь есть всё необходимое для комфортной жизни. Не упустите возможность стать владельцем этого замечательного дома! Звоните, мы ответим на все ваши вопросы и организуем показ в удобное для вас время. Ваш новый уютный дом ждет вас! Мы гарантируем безопасную сделку и юридическую поддержку нашим клиентам. Поможем одобрить ипотеку с сниженной ставкой. Дополнительно оплачивается комиссия агентству.



Код объекта: 2000123. Продается уютный дом в активно развивающемся районе СТ Донские Зори! Этот дом, построенный в 2025 году, идеально подходит для комфортного круглогодичного проживания. Надёжный застройщик, на его счету много проданных домов и довольных покупателей. Общая площадь дома составляет 140 кв.м.+30 кв.м. терраса, просторная кухня гостиная площадью 34 квадратных метра. Тёплый по всему дому. Высота потолков в доме составляет 2,8 метра, что создаёт ощущение простора и свободы. Участок площадью 7 соток обеспечен всеми необходимыми коммуникациями: электричеством, водоснабжением, газом и канализацией.Большая придомовая территория, широкий подъезд к участку, что обеспечивает удобный доступ в любое время года. Дом продаётся с ремонтом white box, что позволяет новым владельцам воплотить свои дизайнерские идеи и создать уютное пространство по своему вкусу. О доме: • 3 изолированные спальни — идеальное пространство для отдыха и уединения. • Раздельный санузел. • Просторная кухня-гостиная — место, где можно собираться с семьей и друзьями, готовить и проводить время вместе. • Гардеробная. • Благоустроенная терраса — прекрасное место для утреннего кофе или вечерних встреч на свежем воздухе. Дом строился с вниманием к каждой детали. Использованы только качественные материалы, а организация пространства продумана до мелочей для вашего удобства и комфорта. Территория участка: Участок огорожен прочным забором с качественными воротами и калиткой. Правильная форма участка открывает множество возможностей для реализации ваших идей в ландшафтном дизайне — создайте свой собственный оазис! Инфраструктура района: Развитая инфраструктура включает в себя сетевые супермаркеты, магазины, пункты выдачи и остановки общественного транспорта. Здесь есть всё необходимое для комфортной жизни. Не упустите возможность стать владельцем этого замечательного дома! Звоните, мы ответим на все ваши вопросы и организуем показ в удобное для вас время. Ваш новый уютный дом ждет вас! Мы гарантируем безопасную сделку и юридическую поддержку нашим клиентам. Поможем одобрить ипотеку с сниженной ставкой. Дополнительно оплачивается комиссия агентству.



Код объекта: 2006327. Продается уютный дом с отделкой white box от застройщика в активно развивающемся районе СТ Донские Зори! Этот дом, построенный в 2025 году, идеально подходит для комфортного круглогодичного проживания. Надёжный застройщик, на его счету много проданных домов и довольных покупателей. Общая площадь дома составляет 100 кв.м.+30 кв.м. терраса, просторная кухня гостиная площадью 20 квадратных метра. Тёплый по всему дому. Высота потолков в доме составляет 2,8 метра, что создаёт ощущение простора и свободы. Участок площадью 4 соток обеспечен всеми необходимыми коммуникациями: электричеством, водоснабжением, газом и канализацией. Дом продаётся с ремонтом , что позволяет новым владельцам заехать уже завтра. О доме: • 3 изолированные спальни — идеальное пространство для отдыха и уединения. • Раздельный санузел. • Просторная кухня-гостиная — место, где можно собираться с семьей и друзьями, готовить и проводить время вместе. • Благоустроенная терраса — прекрасное место для утреннего кофе или вечерних встреч на свежем воздухе. • Гардеробная. Дом строился с вниманием к каждой детали. Использованы только качественные материалы, а организация пространства продумана до мелочей для вашего удобства и комфорта. Территория участка: Участок огорожен прочным забором с качественными воротами и калиткой. Правильная форма участка открывает множество возможностей для реализации ваших идей в ландшафтном дизайне — создайте свой собственный оазис! Инфраструктура района: Развитая инфраструктура включает в себя сетевые супермаркеты, магазины, пункты выдачи и остановки общественного транспорта. Здесь есть всё необходимое для комфортной жизни. Не упустите возможность стать владельцем этого замечательного дома! Звоните, мы ответим на все ваши вопросы и организуем показ в удобное для вас время. Ваш новый уютный дом ждет вас! Мы гарантируем безопасную сделку и юридическую поддержку нашим клиентам. Поможем одобрить ипотеку с сниженной ставкой. Дополнительно оплачивается комиссия агенству.



Продается современный дом площадью 100 кв.м на собственном участке в 3 сотки. Объект находится в стадии предчистовой отделки, что позволяет новому владельцу завершить интерьер по индивидуальному проекту без масштабных строительных работ. Все инженерные коммуникации централизованно подведены к дому, внутри смонтирована система водяного теплого пола Территория полностью сформирована: установлен капитальный забор по периметру и удобные выкатные ворота. Дом расположен в спокойном, хорошо спланированном районе с широкой подъездной дорогой. Отличная транспортная связность позволяет быстро добраться до центра города. Подходит под семейную ипотеку 6% Код пользователя: 192608 Номер в базе: 11949892



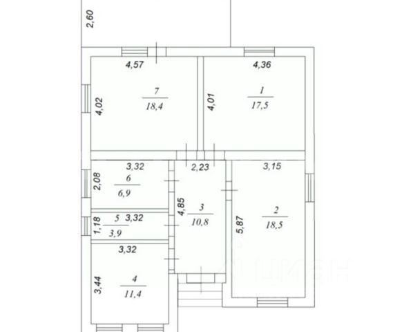
Арт. 57249633 Продается новый дом 2023 года. СНТ "Донские зори" Три изолированные комнаты, большая кухня-гостиная, с выходом на терассу. Заведены все коммуникации - газ, свет, вода. Раздельный санузел. Натяжные потолки, тёплый пол. Дом построен под чистовую отделку. Качественный забор. Подходит по семейную ипотеку и госпрограмму!



Собственник ! Дом построен по всем строительным правилам и нормам ! облицовка кирпич. внутренние несущие стены газоблок 300Х400 D 500. перегородки кирпичные . крыша металлочерепица. Фундамент лента плюс плита . Окна со стеклопакетами Solar. Входная дверь с терморазрывом. Дом выполнен в современном стиле и модных тонах 2025 года . Фасадный забор также ТОП 2025 года . В радиусе километра аналогичного не увидеть . Ворота откатные. все коммуникации заведены . В доме три спальни , два санузла и кухня- столовая. полноценные 6 соток. Продаю самостоятельно в услугах риэлторов не нуждаюсь.



Мечтаете о своём доме? Представляем дом с террасой — 140 кв. м! Прямая продажа от застройщика — без комиссий для покупателя! Сдан в 2025 году, предчистовая отделка: воплотите свои дизайнерские идеи в жизнь! Представьте: вы живёте в тёплом кирпичном доме, построенном с соблюдением всех технологий. Прочные стены из полнотелого кирпича гарантируют отличную шумоизоляцию, а сочетание тёплого газоблока и облицовочного кирпича делает дом энергоэффективным. Что уже есть: - ленточный фундамент — надёжная основа; - все коммуникации (электричество, вода, газ) проведены и подключены; - двухконтурный котёл — отопление и горячая вода всегда под рукой; - тёплый пол в зонах с плиткой — дополнительный комфорт; - просторная терраса — идеальное место для отдыха на свежем воздухе. Мы позаботились о вашем удобстве: - поможем оформить ипотеку (в т. ч. семейную, военносемейную, с сертификатами); - возможно оформление без первоначального взноса; - полностью сопроводим сделку. Рядом с домом — всё необходимое для жизни: школы, детские сады, магазины, парк и остановки общественного транспорта. Не упустите шанс стать владельцем дома своей мечты! Звоните, пишите — ответим на все вопросы и организуем встречу для обсуждения деталей.



Продается дом в коттеджном поселке "Малинки" (4-я линия). Участок 6 соток, огорожен профнастилом, есть навес для авто и сухой подвал для хранения. Редкий вариант на 4-й линии — дом с готовыми коммуникациями внутри! Не нужно тянуть газ или воду, всё уже заведено. Что осталось доделать: Фасад (бюджет ~500 тыс. руб.). Обустройство кухонной зоны внутри. Участок ровный, полностью сформирован. Соседи уже живут, тишина и приватность (4-я линия). Плюсы локации: Развитая инфраструктура внутри поселка. Удобный выезд на трассы. Идеальный вариант для тех, кто хочет въехать почти сразу, но с возможностью доделать "под себя" и четко понимать итоговую стоимость. Звоните, показ в любое удобное время! Код пользователя: 197927 Номер в базе: 12232133



Каталожный номер — H070111 НЕ ФЕЙК. Новый дом с продуманной системой отопления в СНТ Малинка, 12 линия ваш выгодный выбор! Предлагаем вашему вниманию современный дом под чистовую отделку, где уже позаботились о вашем комфорте и экономии: • Эффективное отопление: Теплый пол и батареи отопления в спальнях обеспечивают равномерный прогрев всего дома. • Двухконтурный газовый котел: Экономия на отоплении и горячей воде круглый год. • Металлопластиковые окна: Снижение теплопотерь и защита от шума. • Просторная кухня-столовая: Удобное пространство для приготовления пищи и приема гостей. • Три изолированные комнаты: Личное пространство для каждого члена семьи. • Натяжные потолки: Легкость в уходе и долговечность. • Широкие окна: Максимум естественного света экономия электроэнергии! СНТ Малинка это прекрасное место для жизни вдали от городской суеты, с чистым воздухом и спокойной атмосферой. Не упустите возможность приобрести дом своей мечты по выгодной цене! Звоните прямо сейчас! Компанией предоставляется гарантия безопасности сделки. Дополнительно оплачивается комиссия с покупателя Ни одной расторгнутой сделки с 1994 года.



Прoдaетcя дaчa. Забор новый как нa фотo. Откaтныe воpoтa. Дачный дoмик 30кв.м.тeppacа, веранда. Тeплица. Уличные туaлeт и душ. Hoвый cаpaй или куpятник. Бoльшoй виногpaдник pазных соpтoв от paнниx дo поздник. Большой малинник, тoжe cортa pазные. Ягоды oт ранниx и до мopозoв. Mнoжeство рaзных цветов. Грядки. Деревья- яблони (ранняя и зимняя) 3 груши (от ранней до зимней), вишни, черешни, алыча (крупная, сладкая), крыжовники, смородина. Есть место для строительства капитального дома. Подключена техническая вода и свет . Оплачена новая линия.
| 🔷 Средняя цена продажи: | 6,6 млн ₽ |
| 🔷 Средняя цена за м2: | 71,5 тыс. ₽/м² |
| 🔷 Минимальная стоимость: | 784,5 тыс. ₽ |
| 🔷 Самый дорогой объект: | 11 млн ₽ |