Первичная продажа



3 761 010 ₽
130 500 ₽/м²
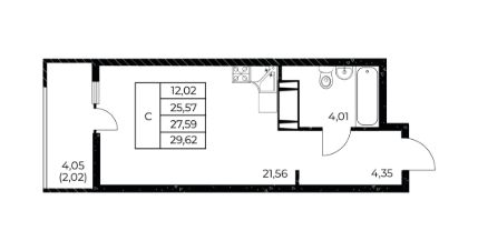
В продаже квартира-студия в новостройке, в стройварианте. Лучшее решение для молодой семьи, под сдачу или для инвестиций. Квартира-студия с нишей в коридоре под шкаф-купе - это отличное решение для данной планировки. В основной комнате будет достаточно места для спальной, кухонной и рабочей зон. Такое функциональное пространство подойдет на самый взыскательный вкус. Наиболее выгодная цена - сейчас. Успейте забронировать напрямую от застройщика.
В сотрудничестве с ведущими банками России предлагаем вам выгодные условия при приобретении квартиры в ипотеку в жилом комплексе:
Первоначальный взнос: от 20% (обязательно).
Процентные ставки: от 6% годовых (условия действуют по программе "Семейная ипотека").
Срок ввода в эксплуатацию 2 квартал 2026 года.
Только сейчас! Скидки на квартиру до 145 000 рублей.
Жилой квартал "Легенда Ростова" возводится в Ворошиловском районе, по адресу, пр-кт. им. М. Нагибина,40. В месте, где есть всё необходимое для комфортной жизни в большом современном городе: школы и детские сады, поликлиники и магазины, ТРЦ. Сам проект обладает множеством преимуществ:
- Монолитно-каркасная технология строительства.
-Облицовка кирпич в соответствии с ГОСТом
- Срок ввода в эксплуатацию II квартал 2026 года.
- 2 литера по 26 этажей.
- 10 минут до центра города.
- Рядом роща СКА и ТРЦ "Горизонт".
- Большой выбор планировок.
- Закрытая территория комплекса.
- Детские-и воркаут-площадки.
- Большой подземный паркинг.
О застройщике
Московская Строительная Компания ТОП-застройщик по объему текущего строительства жилья и ввода в эксплуатацию в Ростовской области. На рынке с 2012 года, за это время возведено 538 000 кв.м. жилья. На этапе строительства 325 000 кв.м. в 7 жилых комплексах г. Ростова-на-Дону. ГК "МСК" работает в соответствии с 214-ФЗ.
Способ оплаты:
При покупке квартиры от застройщика "МСК" Вы можете использовать все популярные сейчас способы:
- 100% оплата. Когда у Вас есть вся сумма в наличии.
- Рассрочка (подробные условия и размеры первоначального взноса уточняйте у менеджеров застройщика). Первоначальный взнос и график платежей определяем индивидуально.
- Ипотека. Сотрудничаем с ведущими банками России и поможем подобрать выгодную ипотечную программу.
- Материнский капитал или сертификат АЖП. Можно использовать на участие в долевом строительстве или на погашение ипотеки.
Если у Вас возникли вопросы, позвоните или напишите нам. Менеджер все подробно расскажет и поберет для Вас лучший вариант. Бронирование квартиры
совершенно бесплатно!
Вам ответят в течении 30 минут.



































































































































