


192 850 ₽/м²
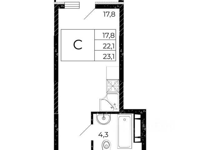
Литер 3.3, 2 этаж, 722. Микрорайон "Придонье" - прекрасная возможность жить в спокойном, зеленом и комфортном месте, всего в 7 минутах езды от Ростова-на-Дону. Небольшой и уютный Аксай создан именно для того, чтобы остановиться, провести время с семьей и отдохнуть от столичного ритма, при этом все возможности мегаполиса остаются под рукой. Квартира находится в современном микрорайоне с развитой инфраструктурой. Идеальный вариант для тех, кто ищет гармонию между тишиной, пространством для жизни и близостью к большому городу. Звоните для всех деталей и просмотра. Вся необходимая инфраструктура в пешей доступности Продуманное содержание Просторные дворы Безбарьерная среда Все для детей всех возрастов Школа на 1 810 мест Два детских сада, общая вместимость 770 мест Две Поликлиники Пожарное депо на 6 машин Опорный пункт полиции Станция скорой помощи на 2 бригады Бульвар Летний кинотеатр Зона для настольных игр Тропа здоровья Вело-беговая дорожка Воркаут зоны для взрослых и детей Зоны отдыха и релакса Тихие зоны с качелями и навесами Площадки для выгула собак + лапомойки Подземный и наземный паркинг Зарядные станции для электромобилей Видеонаблюдение Умная система контроля посетителей Современные умные домофоны Приобрести квартиру можно одним из способов: -субсидированная семейная ипотека от 3,5 % на весь срок -рассрочка -оплата наличными -дистанционная покупка Позвоните сейчас и забронируйте квартиру со скидкой! Купить квартиру-студию от застройщика в Аксайском районе Ростовской области.



































































































































































