


124 444 ₽/м²
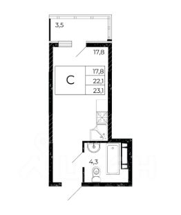
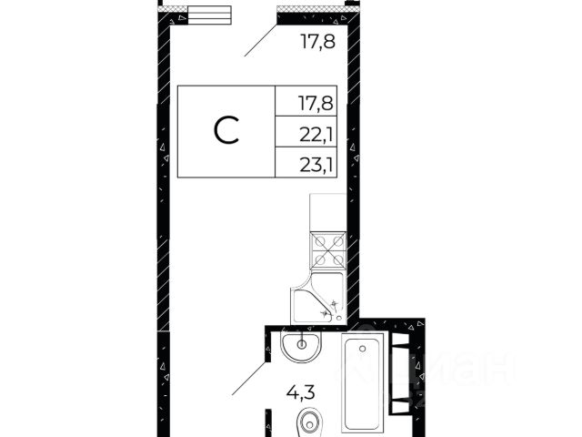
Ищете компактную и современную студию в Ростове-на-Дону для жизни или инвестиций? ЖК "Флора" — это продуманное пространство, интегрированное в живописную экологически благоприятную территорию на площади 30 гектаров. Дом сдан, ключи сразу при покупке.Акции и предложения: Расширенная ипотека для семей с детьми любого возраста до 18 лет! Ипотека 6% на весь срок. КОСМОСКИДКИ - скидки до 1 000 000 руб. или 2 600 000 руб! Расположение: — 30 минут до центра Ростова-на-Дону. — Рядом торговый центр МЕГА и зеленые зоны для отдыха. — Удобная транспортная доступность. Свяжитесь с нами — поможем выбрать студию и рассчитаем выгодные условия покупки. Инфраструктура: — Школа на 1110 учеников на территории комплекс. — Два детских сада в шаговой доступности. — Спортивный комплекс с универсальными залами для всех жителей. — Магазины, кафе и сервисы на первых этажах домов. — Аллея с фонтаном для прогулок с друзьями и семьей. Удобства для жителей: — Подземный и гостевой паркинг с зарядками для электромобилей. — Современные холлы с консьерж-сервисом. — Помещения для хранения колясок и велосипедов. — Зона для выгула домашних животных. Почему студия в ЖК "Флора" — это выгодно: Отличный вариант для первого жилья или сдачи в аренду. Современная среда и развитая инфраструктура. Удобная локация и комфортная организация пространства. Высокий спрос на компактные квартиры. Этаж — 7 Площадь — 22,5 м²О застройщике:ДОННЕФТЕСТРОЙ — надежный застройщик, который зарекомендовал себя среди крупных региональных инвесторов. Работаем с 2016 года и за это время заслужили доверие более 17 000 покупателей. Ввели в эксплуатацию более 912 000 м² жилых и коммерческих объектов. Делаем ставку на опыт и квалификацию нашей команды, современные технологии строительства и высокое качество используемых материалов. Звоните — подберем студию под ваш бюджет, расскажем о вариантах и поможем с расчетом ипотеки.Студия в ЖК "Флора" — это удобный старт для жизни или инвестиций в современном жилом комплексе. Срок действия акций зависит от условий и лимитов банков. Актуальную цену и наличие квартир уточняйте у Отдела продаж. * Рендеры носят иллюстративный характер и демонстрируют возможный вариант оформления квартиры, не являясь ремонтом от застройщика. Продается квартира-студия от застройщика в Аксае.




























































































































