


159 000 ₽/м²
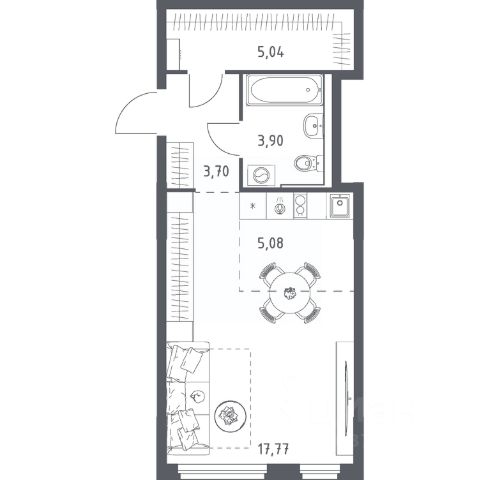
В продаже квартира-студия в новостройке, в стройварианте. Лучшее решение для молодой семьи, под сдачу или для инвестиций. Это современный вариант просторной студии с полноценной прихожей. Благодаря продуманному зонированию при входе достаточно места для зоны хранения вещей. Вся площадь будет использована максимально эффективно для работы и отдыха. Наиболее выгодная цена на этапе строительства. Успейте забронировать квартиру мечты напрямую от застройщика. В сотрудничестве с ведущими банками России предлагаем вам выгодные условия при приобретении квартиры в ипотеку в жилом комплексе: Первоначальный взнос: от 20% (обязательно). Процентные ставки: от 6% годовых (условия действуют по программе "Семейная ипотека"). Срок ввода в эксплуатацию 1 квартал 2027 года. СУПЕР ПРЕДЛОЖЕНИЕ: без платежа до 30.05.2027 г.; первоначальный взнос составляет от 20%; остаток суммы необходимо внести в течение месяца после окончания льготного периода. ЖК Royal Towers - жилой комплекс бизнес-класса по адресу ул. Привокзальная, 9. Это 4 дома с богатой внутренней инфраструктурой, современной архитектурой и множеством других особенностей: - Монолитно-каркасная технология строительства. - Облицовка кирпич в соответствии с ГОСТом - Срок ввода в эксплуатацию II квартал 2026 года. - 4 литера по 26 этажей. - В центре города. - Подземный паркинг. - Лаунж-двор. - Уютные и безопасные детские площадки. - Зоны для воркаута на свежем воздухе. - Торговый центр на территории ЖК. О застройщике Московская Строительная Компания ТОП-застройщик по объему текущего строительства жилья и ввода в эксплуатацию в Ростовской области. На рынке с 2012 года, за это время возведено 538 000 кв.м. жилья. На этапе строительства 325 000 кв.м. в 7 жилых комплексах г. Ростова-на-Дону. ГК "МСК" работает в соответствии с 214-ФЗ. Способ оплаты: При покупке квартиры от застройщика "МСК" Вы можете использовать все популярные сейчас способы: - 100% оплата. Когда у Вас есть вся сумма в наличии. - Рассрочка (подробные условия и размеры первоначального взноса уточняйте у менеджеров застройщика). Первоначальный взнос и график платежей определяем индивидуально. - Ипотека. Сотрудничаем с ведущими банками России и поможем подобрать выгодную ипотечную программу. - Материнский капитал или сертификат АЖП. Можно использовать на участие в долевом строительстве или на погашение ипотеки. Если у Вас возникли вопросы, позвоните или напишите нам. Менеджер все подробно расскажет и поберет для Вас лучший вариант. Бронирование квартиры совершенно бесплатно! Вам ответят в течении 30 минут.





































































