193 431 ₽/м²
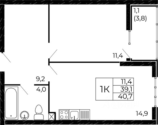
Продается стильная студия в авангардном ЖК "FRAME" в золотом центре ЗЖМ. Район с максимально развитой инфраструктурой: лучшие магазины, рестораны, парки и транспортная доступность. Современная планировка, панорамное остекление и виды на город. Новейшие технологии и материалы. Идеальное решение для жизни в динамичном ритме мегаполиса и престижного вложения средств. Ваша квартира в самом сердце процветающего района. Дом сдается в декабре Дополнительно оплачивается комиссия с покупателя. Код пользователя: 191163 Номер в базе: 9693900








































































