


153 800 ₽/м²
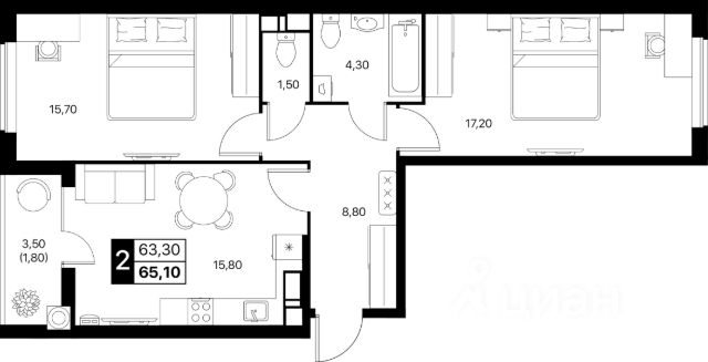
Продается уютная и светлая 2х комнатная квартира в востребованном жилом комплексе "ЭСТЕТ" от федерального застройщика "ЮгСтройИнвест". Новый жилой квартал в рамках масштабного проекта "Новый Ростов", преображающий Пролетарский район. Идеальный выбор для тех, кто ищет стильное и комфортное жилье в лучшем районе города! О квартире: Удобная планировка Просторные светлые комнаты Отличный выбор для проживания, инвестиций, сдачи в аренду Мы — надежный застройщик ЮгСтройИнвест — лидер на рынке строительства Юга России с более чем 20-летним опытом. Преимущества покупки у ЮгСтройИнвест: Репутация 1 в регионе Строгое соблюдение сроков Качественные материалы Современные благоустроенные территории Инфраструктура под ключ (школы, сады, магазины) Высокая ликвидность и инвестиционная привлекательность Выгодные условия от застройщика: Траншевая ипотека Квартиры с выгодой до 560 000 ₽ в новом квартале "Эстет" Мурабаха — квартиры с выплатой долями, без процентов Ипотека от 3,5% — эксклюзивно для клиентов ЮгСтройИнвест Скидка при оформлении в день первичного обращения ИТ-ипотека с низкой процентной ставкой Ипотека с первоначальным взносом в размере материнского капитала Военная ипотека без первоначального взноса — ставка от 6% Дополнительные бонусы: Скидка для молодоженов 100 000 ₽ Скидка на квартиры при оформлении в день обращения Скидка 3 000 ₽/м² для граждан с пропиской за пределами Ростовской области Скидка до 2 500 ₽/м² для постоянных клиентов ЮгСтройИнвест О жилом комплексе: ЖК ЭСТЕТ — квартал впечатлений — это продуманный проект комфорт-класса на территории бывшего Аэропорта. Квартал площадью 18,85 га включает 7 жилых кластеров и 14 домов переменной этажности (от 8 до 20 этажей). — В комплексе предусмотрены школа на 1 800 мест и детский сад на 300 мест. Каждый кластер имеет свою уникальную тематику, основанную на одной из эмоций: Энтузиазм, Вдохновение, Предвкушение, Гармония, Увлечение, Восторг, Интерес — эти темы создают неповторимую атмосферу и придают каждому участку квартала свою индивидуальность и творческий характер. Дворовая территория: Открытая фитнес-зона Уличные тренажёры Интерактивные игровые площадки Зоны релакса Парк "Импрессионистов" Аллея танца "Мимолетность" Сквер и бульвар "Авиаторов" по мотивам "Маленького принца" Локация для киносеансов С первым этапом вводится и детский сад. 70% территории — общественные пространства на 12,53 Га разместились: Тематические парки Скверы и аллеи Скейт-парк, ламп-трек Площадки: теннис, стритбол, воркаут Уличная библиотека, арт-терапия, амфитеатр Музыкальный городок, батуты Босоногая тропа Нейродинамические зоны Каждый двор — отдельный "мир" со своей историей и функционалом. Архитектура: Фасады — вентилируемые, выполнены в премиальных материалах: Клинкерный кирпич Алюминиевые композитные панели Керамогранит На первых этажах расположена коммерция — магазины, кафе, сервисы. Для автомобилистов: Подземный паркинг Многоуровневые стоянки на 300 м/м


































































































































