Только на Циан
7 300 000 ₽
ДОМ В ТАГАНРОГЕ
Купить двухэтажный дом с ремонтом, мебелью и бытовой техникой в пригороде Таганрога (посёлок Греческие роты) с городской пропиской
ПОДРОБНОЕ ОПИСАНИЕ:
• Район: посёлок Греческие роты, СНТ ОМЕГА
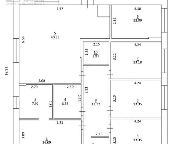
• Площадь дома: 253.3 м²
• Материал постройки: кирпич
• Межэтажные перекрытия: железобетонные
• Фундамент: бетонный
• Участок земли: 12.1 сотки (разделён на два: см. описание ниже)
• Площадь кухни: 19.9 м²
• Количество комнат: 5 шт. (2 на первом этаже и 3 комнаты на втором этаже)
• Ванная комната на первом этаже: 10 м²
• Сан.узел на первом этаже: 1 шт.
• Сауна на первом этаже (с выходом из ванной комнаты): 6.7 м²
• Сан.узел на втором этаже (1 в спальне; 2-й в детской): 2 шт.
• Встроенная кухня: +
• Мебель и бытовая техника: + (по договорённости)
• Состояние: хорошее
• Окна: металлопластиковые
• Стены: обои
• Полы: керамогранит (цоколь и первый этаж; паркет (второй этаж)
• Потолок: подвесной (гипсокартон) многоуровневый с точечной подсветкой
• Автономное отопление: газовый котел (в котельной, в цокольном этаже)
• Тёплый водяной пол: на двух этажах по всей площади (цоколь, первый) дети могут бегать босиком в любое время года
• Водоснабжение: централизованное и своя скважина
• Накопительный бак для воды в доме (резерв воды на случай отключения водопровода)
• Канализация: сливная яма (трёх секционный септик)
• Электричество: + в подарок генератор
• Гараж капитальный подземный: +
• Гараж летняя кухня (двухэтажный) отдельно стоящий: 50.5 м²
• Беседка (с выходом из летней кухни): +
• Въезд (в 2 гаража): +
• Навес крытый: +
• Придомовая парковка: +
• Цена: уточняется в день обращения
Городская прописка
ОСОБЕННОСТИ УЧАСТКА
Дом, гараж летняя кухня, хоз. постройки расположены на участке 6,04 сотки; участок 6.06 сотки, без строений, примыкает к основному участку; следовательно, участок 12.1 сотки имеет два заезда с двух параллельных аллей. Участок 6.06 сотки имеет отдельный адрес (при необходимости, их можно объединиться в один адрес.
ДОМ расположен ТИХОМ и ЖИВОПИСНОМ месте вблизи Миусского лимана.
Беседка. Летние душ и туалет. Зона барбекю.
Сливная яма с трёх секционным септиком.
2 въезда: в подземный гараж, и в отдельно стоящий гараж
МЕБЕЛЬ И БЫТОВАЯ ТЕХНИКА ОСТАЕТСЯ ПОКУПАТЕЛЮ (по договорённости).
Встроенная кухонная мебель. Стиральная машина - автомат.
Посудомоечная машина, встроена техника ELECTROLUX.
Несколько сплит систем.
РАЙОН
с развитой инфраструктурой: в пяти минутах ходьбы продуктовый магазин и остановка общественного транспорта; фельдшерский пункт с мобильной диагностикой, который можно посетить (2 раза в неделю.
ДОКУМЕНТЫ: под все виды сделок: можно купить в ипотеку, купить под материнский капитал, купить за наличный способ оплаты.
Агентство недвижимости АРКОНА работает на рынке недвижимости с 2007 года
ЗВОНИТЕ! ДОГОВОРИМСЯ О ПРОСМОТРЕ ДАННОГО ДОМА!
537968

















































































