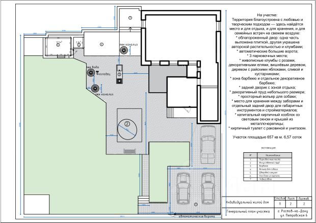
Продается шикарное домовладение 900 квадратных метров в самом центре района Нахичевань. В доме 4 уровня. 10 комнат, 3 санузла, большая кухня-гостиная, где можно устраивать ужины для большой семьи. Есть комната для домашнего кинотеатра. Везде выполнен качественный дизайнерский ремонт с использованием дорогих стройматериалов. Установлены большие, просторные лестницы, уложенные плиткой. Ну участке 8,69 соток расположены деревья, за которыми ухаживает ландшафтный дизайнер, есть большая беседка. Все строилось и делалось с умом и большой любовью. Дополнительно оплачивается комиссия с покупателя. Код пользователя: 184041 Номер в базе: 2347920 Продается дом на улице 41-я Линия в городе Нахичевань в городе Ростов-на-Дону.









































































