


260 988 ₽/м²
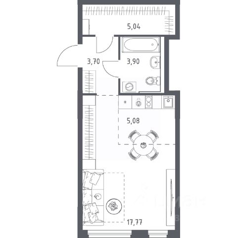
Ремонт в подарок при покупке любой квартиры! Представьте себе тихое место, где каждый ваш день начинается с пробуждения под нежное журчание реки и пение птиц. Жилой комплекс "Ботаника" — это ваш личный оазис, находясь в котором вы почувствуете настоящее единение с природой. Расположенный в живописном Ленинском районе Ростова-на-Дону, ЖК "Ботаника" — это новый проект комфорт-класса, сочетающий современные технологии и эко-стиль. Первая очередь включает 4 разновысотных корпуса (1725 этажей) на территории площадью 12 га, где всё продумано для комфортной и безопасной жизни. Внутри комплекса будет работать дошкольное образовательное учреждение , а всё необходимое — магазины, кафе, сервисы — вы сможете купить в коммерческих помещениях на первых этажах. Современная архитектура в белых и серых тонах привлекает с первого взгляда. Панорамное остекление наполняет квартиры светом, а корзины для кондиционеров на фасадах сохраняют эстетику фасадов. На цокольных этажах — кладовые , в подъездах — колясочные , а стильные лобби с зонами отдыха, гостевыми туалетами и лапомойками для собак создают атмосферу уюта и заботы. Территория комплекса полностью закрыта от машин и благоустроена: зелёные газоны, деревья, детские и спортивные площадки — всё, чтобы вы и ваша семья жили в гармонии с природой и собой. "Ботаника" — это не просто дом. Это новый образ жизни. Успейте приобрести квартиру с ремонтом — пока акция действует! Купить квартиру-студию в новостройке в районе Ленинский в городе Ростов-на-Дону.






























































































