


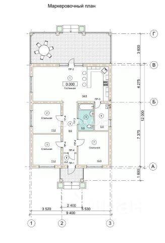
Каталожный номер — H043546 НЕ ФЕЙК. Представлен к продаже новый дом с участком шесть соток в красивом коттеджном поселке Красный Крым, который находится в трёх километров от города. Дом с завершенным строительством, без внутренней отделки. Строительство велось для себя, предусмотрено было возвести два этажа поэтому есть полноценный цокольный этаж с окнами, с широкой бетонной лестницей в два марша. Цокольный этаж по планировке на две большие комнаты, котельная комната и есть дополнительный выход на улицу, на задний двор. Первый этаж по планировке просторная кухня-гостиная, две спальни и совмещенный санузел, при желании планировку ещё можно изменить, так как нет внутренней отделки. Материалы в строительстве применялись качественные. По коммуникациям люк питьевой воды во дворе, на электрическом столбе установлен счетчик, договора заключены, газ проходит по меже, есть возможность подключения. Поселок практически весь заселён красивыми современными домами, дороги широкие на некоторых улицах асфальт, или засыпаны щебнем, как показано на фото. На территории есть продуктовый магазин, по дороге к дому есть несколько торговых центров, строительных магазинов и с каждым днем их всё больше и больше. Дополнительно оплачивается комиссия с покупателяДанный объект участвует в программе Trade-In Купить коттедж с участком 6 соток в Мясниковском районе Ростовской области.



























































































