Арт. 129993677 Продаётся трёхкомнатная квартира в центральном, экологически чистом районе нового города
Общая площадь: 64,5 м²
Жилая площадь: 45 м²
Площадь кухни: 6 м²
Этаж: 3 из 5
Тип дома: панельный, 5 этажей
Санузел: раздельный
Балкон/лоджия: лоджия, новое остекление
Ремонт: капитальный, состояние "под чистовую отделку"
Продажа: свободная, возможна ипотека, материнский капитал
Расположение:
Квартира находится в центральной части города, в районе с развитой инфраструктурой и минимальной транспортной нагрузкой. Дом расположен в удалении от крупных дорог — нет шума и пыли. Из окон открывается вид на зелёный двор и окружающие пространства; плотная застройка отсутствует, окна не выходят на соседние дома.
Рядом:
Детские сады: "Тополёк" (логопедический), "Аленушка" — в шаговой доступности;
Школа 11 (3 минуты ходьбы);
Городская поликлиника 3;
Новая прогулочная аллея с фонтаном и зонами отдыха (открыта в ноябре 2025 г.);
Парк "Дружба", рынок "Солнышко", Дом быта, КДЦ "Комсомолец";
Супермаркеты, кафе, рестораны, остановки общественного транспорта.
В радиусе 1 км — 9 школ, 8 детских садов, 6 государственных медицинских учреждений.
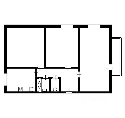
Планировка:
Комнаты изолированные, правильной геометрии, без узких и проходных зон:
17,2 м², 17,1 м², 10,6 м²;
Прихожая 9 м²;
Перепланировок нет, все площади соответствуют технической документации.
В квартире выполнен капитальный ремонт с полной заменой коммуникаций:
Стены подготовлены под финишную отделку (возможна поклейка обоев или скидка);
Натяжные потолки;
Межкомнатные и входная двери — новые;
Напольное покрытие — линолеум;
Санузлы отделаны плиткой Kerama Marazzi, установлена новая сантехника;
Лоджия застеклена, остекление новое.
Доп. информация:
Дом без лифта, оборудован мусоропроводом и газом;
Во дворе — детская площадка, открытая парковка;
Подъезд чистый, соседи спокойные и дружелюбные;
Документы оформлены, два взрослых собственника;
Сделка возможна с ипотекой и материнским капиталом;
Нотариальное оформление;
Торг уместен и обсуждается при просмотре.
Квартира подойдёт семьям с детьми, ценящим развитую инфраструктуру, хорошую транспортную доступность и качественную подготовку жилья под финишную отделку.
Уважаемые покупатели! Приобретая недвижимость, вы получите сертификат на сумму 50 000 рублей от сети гипермаркетов HOFF.
Звоните или пишите для получения ответов на возникающие вопросы, а также для записи на просмотр дома.
"DOMIAN" — сеть агентств недвижимости НОВОГО ФОРМАТА!
На рынке недвижимости с 2009 года.
На начало 2024 года в составе сети агентств недвижимости "DOMIAN" 83 офиса и более 800 работающих Агентов. Секрет нашего успеха уникальная система работы.
Мы делаем жизнь наших партнёров и клиентов лучше!