68 750 ₽/м²
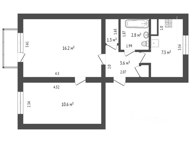
Продается уютная двухкомнатная квартира с отличным евроремонтом! Общая площадь составляет 40 кв. м, кухня — 5 кв. м. Квартира расположена на первом этаже двухэтажного дома. Окна выходят как во двор, так и на улицу. В квартире есть качественный евроремонт: на полу плитка(тепл.пол), в гостин и спальне- линолеум, стены штукатурка ,оклеены обоями;натяжные потолки, пласт.окна,новые межкомнатные и входная двери,новое отопление, электропроводка, сантехника. Санузел раздельный. Дом в хорошем состоянии. Во дворе есть парковочные места и свои бельев.верёвки. Рядом с домом находятся два детских сада, школа. Вблизи почта, Сбербанк ,рынок, магазины. Продажа от собственника, без посредников. Возможна ипотека. Квартира без обременений, все документы готовы к сделке.









































































