ОДНОКОМНАТНАЯ КВАРТИРА В ТАГАНРОГЕ
Купить однокомнатную квартиру в Таганроге в самом востребованном районе
ПОДРОБНОЕ ОПИСАНИЕ:
• Район: ул. Морозова
• Этаж: 8/8 кирпичного дома
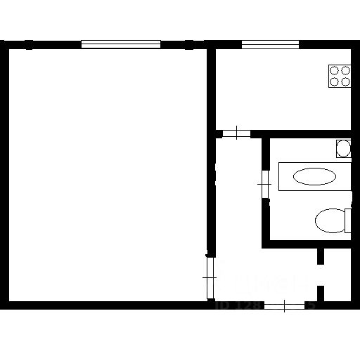
• Общая площадь: 39,4 м²
• Площадь кухни: 11,9 м²
• Дополнительно: закрытая территория, видеонаблюдение
• Состояние: евроремонт
• Санузел: совмещенный
• Окна: витражные, металлопластиковые
• Лоджия: совмещенная с комнатой
• Счётчики: свет, вода, газ
• Цена: уточняется в день обращения
ОДНОКОМНАТНАЯ КВАРТИРА С ОТЛИЧНЫМ РЕМОНТОМ И АВТОНОМНЫМ ОТОПЛЕНИЕМ
Квартира в отличном состоянии. Выполнен качественный ремонт с использованием дорогостоящих материалов. Установлены качественные межкомнатные двери. Панорамные металлопластиковые окна обеспечивают хорошее естественное освещение. Полы - практичный линолеум.
Квартира светлая, уютная. Грамотно спланированное зонирование комнаты создает комфорт, так как позволяет эффективно использовать пространство и учитывать потребности жильцов. Натяжные потолки. Стильно, с учетом каждой зоны комнаты сделано освещение.
АВТОНОМНОЕ ОТОПЛЕНИЕ
Дает возможность начинать/завершать отопительный сезон по Вашему предпочтению. А также несет существенную экономию при оплате коммунальных платежей. Двухконтурный котел - горячая вода есть всегда.
Две сплит - системы для поддержания климат контроля.
ЛОДЖИЯ
Совмещенная с комнатой. Прекрасный вид на море.
САНУЗЕЛ
Совмещенный, просторный. Оформлен в новом современном веянии. Многофункциональный. Стены и пол- плитка.
КУХНЯ
Просторная, грамотно оборудованная, со встроенной бытовой техникой позволит жильцам с комфортом заниматься приготовлением пищи. Кухонный гарнитур остается новым хозяевам.
ДОМ
современный, красивый, ухоженный. Облагороженная придомовая, закрытая, охраняемая территория. Въезд- автоматические ворота. По периметру двора установлены камеры видеонаблюдения. Рядом с домом есть парковка, где можно оставить свой автомобиль без проблем. Современная детская площадка.
ПОДЪЕЗД
широкий, с большими лестничными площадками. Проводится регулярно уборка, что делает проживание здесь еще более приятным. Модернизированный, просторный, бесшумный лифт.
РАЙОН
с высоко развитой инфраструктурой:
рядом всё, что необходимо для комфортного проживания: детский сад, школа, сетевые магазины Семейный Гипермаркет Магнит, Пятерочка, ТЦ Москва, роща ДУБКИ для прогулок, отдыха, спорта, диагностический цент, теннисная академия, поликлиники, рынки Березка и Новый вокзал для любителей свежих, домашних продуктов, салоны красоты, аптеки.
ТРАНСПОРТ
Остановка общественного транспорта рядом с домом. Гордость нашего города - Таганрогский Трамвай - остановка у дома.
ДОКУМЕНТЫ
под все виды сделок: купить в ипотеку, купить за материнский капитал, купить за наличный способ оплаты.
Агентство недвижимости АРКОНА работает на рынке недвижимости с 2007 года
ЗВОНИТЕ! ДОГОВОРИМСЯ О ПРОСМОТРЕ ДАННОЙ КВАРТИРЫ!
538305