


217 000 ₽/м²
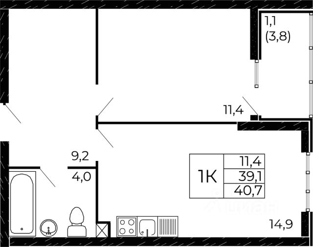
Продаётся уютная 1-комнатная квартира в новом квартале "Сияние" от федерального застройщика "ЮгСтройИнвест". О квартире: Грамотная и функциональная 1-комнатная планировка; Просторная комната, которую легко зонировать под отдых и работу; Большие окна — много света и воздуха; Удобная кухня с местом под обеденную зону; Предчистовая отделка — стены и пол полностью готовы к началу ремонта; Стяжка, штукатурка, электроразводка выполнены; Индивидуальное отопление — комфорт и экономия. Идеальный выбор для молодоженов — уютная, светлая квартира, где можно создать свой первый семейный интерьер и начать жизнь в новом, развивающемся районе. О квартале "Сияние": Красивый и продуманный ландшафтный дизайн; Современная детская площадка; Спортивные зоны и места для тренировок; Беседки с USB-зарядками, бесшовный Wi-Fi по территории; Закрытая охраняемая территория + видеонаблюдение; Рядом — центр Нового Ростова и большой парк для прогулок, спорта и отдыха. Преимущества дома и локации: Первая парковая линия — вид на парк и храмовый комплекс; Приватный закрытый двор только для жителей кластера; Новая школа и детский сад — в двух шагах; Двухуровневая коммерция: магазины, кафе, сервисы; Подземный паркинг с лифтом до этажа; Места с зарядками для электромобилей. Выгодные условия от застройщика: Ипотека 5% на первые 24 месяца; Комплексный продукт — ставка от 4,6% без удорожания; Семейная ипотека — от 3,9%; Материнский капитал, как первый взнос; Военная ипотека без ПВ от 6%²; Скидка молодоженам; Ипотека 0,11% на первый год. Хотите планировки и расчёт? Позвоните или напишите — вышлем планировки, актуальные цены и поможем оформить покупку на самых выгодных условиях. Добавьте объявление в избранное, чтобы не потерять! * Рендеры носят иллюстративный характер и демонстрируют возможный вариант оформления квартиры, не являясь ремонтом от застройщика. Продается 1-комнатная квартира с лоджией в Ростове-на-Дону.






























































































































