


136 649 ₽/м²
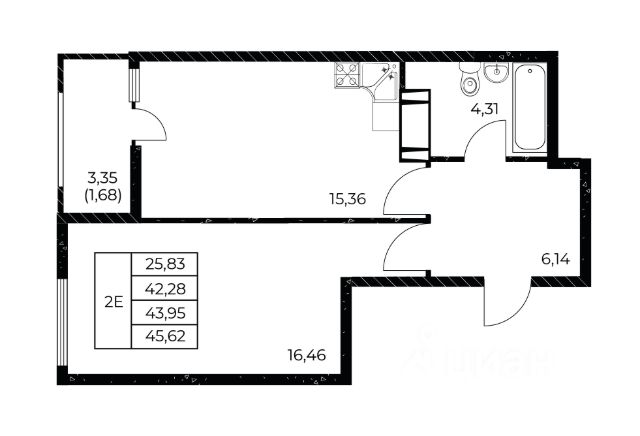
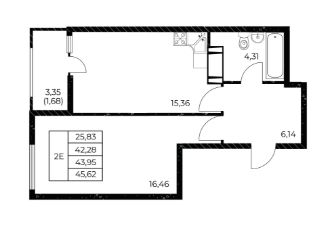
"ГРИНСАЙД" от "СК10"-зеленый жилой квартал в географическом центре Ростова-на-Дону. Компллекс расположен в границах трех улиц Нагибина, Ленина и Нансена. Центр философии "ГРИНСАЙД"-гармоничная жизнь для людей любого возраста. Для этого мы создаем новую инфраструктуру, которая будет реализована через смарт-технологии. С территории "ГРИНСАЙД" легко выехать в любую точку города. В "ГРИНСАЙД" будет 3 детских сада, школа, поликлиника, пункт скорой помощи, свои прогулочные аллеи и фонтан. секция 6.1 (2.46) кв.37 Продам 1-комнатную квартиру в микрорайоне РИИЖТ в городе Ростов-на-Дону.



















































































































