


142 000 ₽/м²
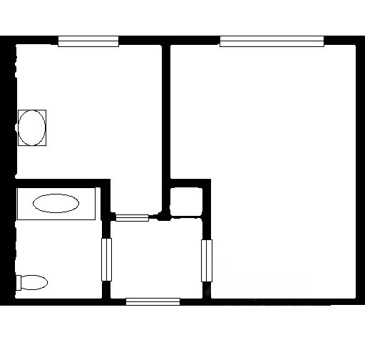
ЖИЛОЙ КОМПЛЕКС "АТАМАН" Представляет собой два монолитно-кирпичных корпуса с просторными квартирами под индивидуальное отопление с предчистовой отделкой. На территории организовано озеленение, детские и спортивные площадки с зонами для отдыха. Рядом есть все необходимое для комфортной жизни: детский сад, торговый центр "Батон", кинотеатр, магазины, салоны красоты, остановка общественного транспорта. Идеальное место для комфортной и спокойной жизни! Способы приобретения квартиры: - наличный расчет или ипотека (семейная, военная, IT-ипотека); - материнский семейный капитал; - государственный жилищный сертификат. Приобретение недвижимости напрямую от Застройщика без комиссий. - Заключение договора долевого участия по ФЗ 214 - Бесплатная электронная регистрация сделки - Полное юридическое сопровождение сделки, помощь в одобрении ипотеки. - Продажа ведется с применением эскроу счетов при поддержке АО "АЛЬФА-БАНК" по программе "Проектное финансирование". Ввод дома в эксплуатацию II квартал 2027 г. ЖК "АТАМАН" - от пола до крыши всё на уровне высшем! Продается 1-комнатная квартира на 5 этаже в Новочеркасске.






























































































