Мы используем куки-файлы. Соглашение об использовании
Только на Циан
Общая площадь176 м²
Участок6,1 сот.
Материал домаГазобетонный блок
Этажей в доме1
Год постройки2020
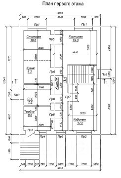
Продаю дом 176 кв.м на участке 6.1 сотки. Собственник, все документы оформлены, прописка Ворошиловский район. Кухня и 2 жилые комнаты на первом этаже, в цоколе 2 жилые комнаты, котельная и хозяйственное помещение. Участок огорожен капитальным забором (кирпич по фасаду, шлифованное дерево внутри) на монолитной ленте, заведены коммуникации (подземный ввод электричества и интернет). Газ по меже, оплачен, проводилась оценка готовности дома и документов к подключению. Дом с полным цокольным этажом. Заглубление по фасаду 1.5м, на заднюю часть 1.2м. Качественная гидроизоляция, стены утеплены снаружи. Сверху отмостка на мембране с послойной трамбовкой, готова к укладке плитки. В цоколе сделаны выводы для коммуникаций - вода, канализация, электричество во внутренний двор. Подготовка под котельную по всем требованиям + дополнительный отдельный вход в цоколь. Материл дома - газобетон, облицовка кирпичом. Между - воздушный вентилируемый зазор. Перекрытие цоколя - плиты. Всё лестницы - монолитные, правильной высоты и формы. Крыша - металлочерепица. Чердак неотапливаемый, перекрытие с утеплением и звукоизоляцией (200мм). Лестницы к дому и в цоколь накрыты такой же черепицей, качественно подшиты деревом в цвет внутреннего забора. Внутри дома сложены перегородки, распланированы комнаты: прихожая 8.8кв.м, санузел 7.3кв.м, кухня-столовая 18.8кв.м, спальня 17,2, гостиная 19.3. В цокольном этаже кабинет 21.9, гостевая 18.5. Подсобные помещения Дом остеклен, качественные пакеты в 3 стекла, размер "до пола". На участке скважина, высажены можжевельники, фруктовые деревья, красивая сосна, кустарники и цветы. Планировка участка рассчитана на парковку на 2 машины, беседку и другие постройки. Вокруг хорошие соседи, обшитая территории. Рядом остановка общественного транспорта. Срочная продажа по семейным обстоятельствам. Торг реальным покупателям.
Позвоните автору
Вам ответят на все вопросы

О доме

Площадь

176 м²

Материал дома

Газобетонный блок

Состояние дома

Нужен ремонт

Количество этажей

1

Количество спален

4

Год постройки

2020

Об участке

Площадь

6,1 сот.

Категория земель

Земли населённых пунктов

Статус участка

Садоводство

Коммуникации и удобства

Санузел

1 в доме

Канализация

Нет

Водоснабжение

Скважина

Отопление

Нет

Электричество

Есть

Газ

Магистральный по границе

Спросите умного помощника
Получите экспертное мнение о жилье

Расположение

Подпишитесь на объявления в этой локации
Мы сообщим, как только поблизости появится что‑нибудь новенькое

Рекомендуем коттеджные посёлки

Охрана, зоны отдыха и удобная инфраструктура
Ипотечный калькулятор
  • Базовая
  • Семейная
  • ИТ-ипотека
  • 20%
  • 30%
  • 40%
  • 50%
лет
  • 10 лет
  • 20 лет
  • 30 лет
Загружаем предложения от застройщика и банков
СобственникID 112565276
    Хотите продать недвижимость?Разместите объявление на ЦианРазместить
    7 500 000 ₽
    Цена за метр
    42 614 ₽/м²
    Условия сделки
    свободная продажа
    Ипотека
    возможна
    СобственникID 112565276