Мы используем куки-файлы. Соглашение об использовании
Площадь324 м²
Этаж1 из 26
ПомещениеСвободно
Отчёт о привлекательности объектаУзнайте, насколько помещение и район подходят для вашего бизнеса
Что входит в отчёт
  • Охват населения
  • Пешеходный трафик
  • Автомобильный трафик
  • Средний бюджет семьи по району
  • Арендные ставки рядом
  • Точки притяжения
  • Конкуренты в радиусе 1 км
  • Рекомендации по выбору места для бизнеса
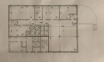
Арт. 134469504 При звонке просьба указать номер объекта - 134469504 Предлагается к продаже современное офисное помещение общей площадью 324 м² Помещение расположено на 1 этаже жилого дома 2017 года постройки в районе — ЖК "Гвардейский 3.0", Ленинский район. Объект идеально подойдёт для размещения компании с клиентским потоком, представительского офиса или инвестиционного проекта. Планировка и характеристики: 5 функциональных кабинетов; Просторный open space 120 м² — идеально под отдел продаж или командную работу; 2 санузла; Отдельная кухня с подведёнными коммуникациями; Электрощитовая и подсобное помещение; Преимущества: 2 отдельных входа — удобное разделение потоков или организация независимых зон; На одном из входов — просторная терраса; В 2024 году выполнен качественный современный ремонт — можно заезжать и работать без дополнительных вложений; Отлично подойдёт под офис, медицинский центр, образовательный проект, IT-компанию или коворкинг; Локация: Ленинский район — деловой и активно развивающийся кластер; Удобная транспортная доступность как на автомобиле, так и пешком; Быстрый доступ к центру города; Плотная жилая застройка вокруг обеспечивает потенциальный клиентский поток; Ваш будущий офис уже готов к работе — осталось только принять решение. Звоните прямо сейчас, чтобы записаться на просмотр и не упустить этот объект. С уважением, Дон-МТ Недвижимость, агент Глеб 205.
lock

Войдите или зарегистрируйтесь
для просмотра информации

Просматривайте условия сделки и всю информацию об объекте
Сохраняйте фильтры в поиске и не вводите заново
Доступ к избранному с любого устройства
Неограниченное добавление в избранное
Позвоните автору
Вам ответят на все вопросы
Остались вопросы по объявлению?
Позвоните владельцу объявления и уточните необходимую информацию.
  • Инфраструктура
  • Похожие рядом
  • Тип зданияЖилой дом
  • Общая площадь324 м²
Центральное отопление
Помощь надёжных риелторов
Риелтор партнёр Циан поможет купить или продать любую недвижимость
45 000 000 ₽
598 130 $
507 155
Цена за метр
138 889 ₽
Налог
НДС не включен
Агентство недвижимости
На Циан
10 лет
Объектов в работе
более 1000
Риелтор
Суперагент
3,7・3