Мы используем куки-файлы. Соглашение об использовании
Аукцион
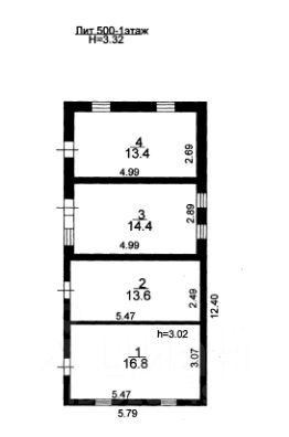
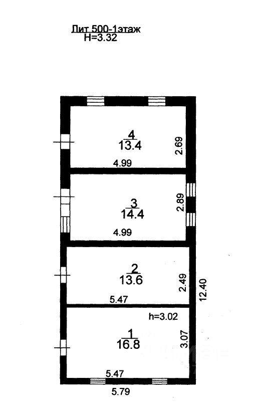
Площадь61,6 м²
Этажность1
Отчёт о привлекательности объектаУзнайте, насколько помещение и район подходят для вашего бизнеса
Что входит в отчёт
  • Охват населения
  • Пешеходный трафик
  • Автомобильный трафик
  • Средний бюджет семьи по району
  • Арендные ставки рядом
  • Точки притяжения
  • Конкуренты в радиусе 1 км
  • Рекомендации по выбору места для бизнеса
ОАО РЖД предлагает к продаже нежилое здание общей площадью 61,6 кв. м в станице Обливской, Ростовской области. Одноэтажное кирпичное здание 1972 года постройки подходит для складской деятельности. Состояние помещений удовлетворительное, требуется проведение косметического ремонта. Инженерные коммуникаций отсутствуют, есть возможность подключения электроснабжения. Объект расположен в районе с развитой железнодорожной инфраструктурой. Хорошая транспортная доступность, удобный подъезд с улицы Кузнецова. В шаговой доступности магазины, остановки общественного транспорта и железнодорожная станция Обливская. Объект расположен на земельном участке площадью 74 кв. м, являющейся муниципальной собственностью. Об организации осмотра и подробных условиях продажи Вы можете узнать по телефону в объявлении.
АукционОбъект реализуется посредством электронных торгов. Конечную информацию об оплате, дополнительных платежах и условия заключения договора смотрите в документах извещения к лоту, на сайте электронной торговой площадки.
lock

Войдите или зарегистрируйтесь
для просмотра информации

Просматривайте условия сделки и всю информацию об объекте
Сохраняйте фильтры в поиске и не вводите заново
Доступ к избранному с любого устройства
Неограниченное добавление в избранное
  • Инфраструктура
  • Похожие рядом
Помощь надёжных риелторов
Риелтор партнёр Циан поможет купить или продать любую недвижимость
Начальная цена, аукцион
311 100 ₽
4 388 $
3 761
Цена за метр
5 051 ₽
Налог
НДС включен: 56 100 ₽
Агентство недвижимости
Документы проверены