Мы используем куки-файлы. Соглашение об использовании
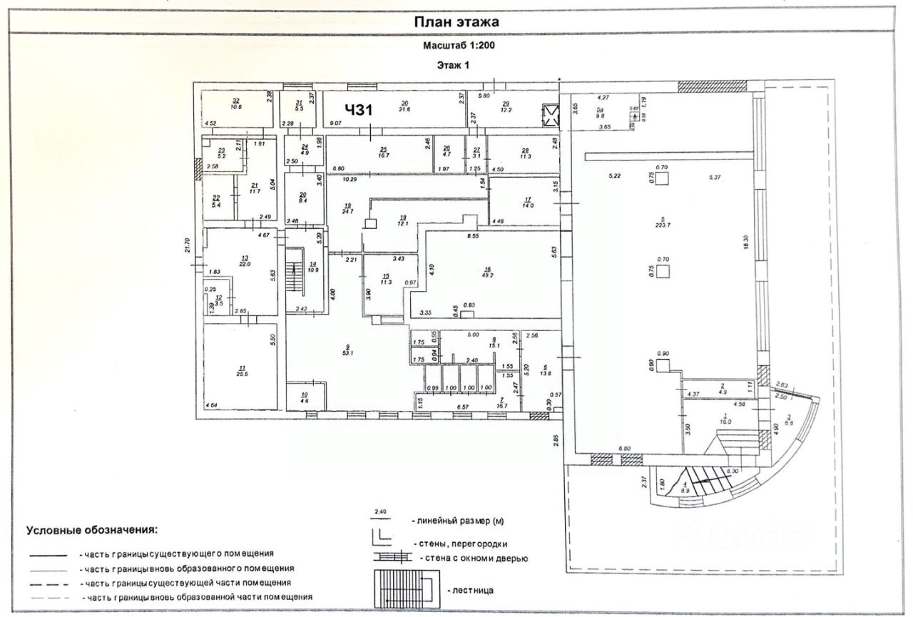
Помещение свободного назначения, 1 472,5 м²

Продается помещение свободного назначения, 1 472,5 м²

Площадь1 472,5 м²
Этаж1 из 3
Отчёт о привлекательности объектаУзнайте, насколько помещение и район подходят для вашего бизнеса
Что входит в отчёт
  • Охват населения
  • Пешеходный трафик
  • Автомобильный трафик
  • Средний бюджет семьи по району
  • Арендные ставки рядом
  • Точки притяжения
  • Конкуренты в радиусе 1 км
  • Рекомендации по выбору места для бизнеса
Каталожный номер — B067475 НЕ ФЕЙК Предлагаем в покупку многофункциональное здание. Возможные направления: торговля, представительство компании, общепит, производственная и складская деятельность. Характеристики и преимущества здания: - отдельностоящее 2х этажное здание площадью 1472,5кв.м. + складская закрытая зона (200 кв.м.), - угловой земельный участок 15 соток (зона ПКТ), - фасад на ул. Вавилова 30м и 50м, - коммуникации: электромощность — 200 кВт, газ среднего давления, центральные водоснабжение и канализация. Контактное лицо: Елена Владимировна. Звоните, отвечу на все Ваши вопросы. Дополнительно оплачивается комиссия с покупателя Ни одной расторгнутой сделки с 1994 года.
lock

Войдите или зарегистрируйтесь
для просмотра информации

Просматривайте условия сделки и всю информацию об объекте
Сохраняйте фильтры в поиске и не вводите заново
Доступ к избранному с любого устройства
Неограниченное добавление в избранное
Позвоните автору
Вам ответят на все вопросы
Остались вопросы по объявлению?
Позвоните владельцу объявления и уточните необходимую информацию.
  • Инфраструктура
  • Похожие рядом
  • Тип зданияОтдельно стоящее здание
  • Общая площадь1 472,5 м²
Помощь надёжных риелторов
Риелтор партнёр Циан поможет купить или продать любую недвижимость
130 000 000 ₽
1 725 402 $
1 471 483
Цена за метр
88 286 ₽
Налог
НДС включен: 23 442 622 ₽
Агентство недвижимости
Документы проверены
На Циан
12 лет
Объектов в работе
более 2000