Мы используем куки-файлы. Соглашение об использовании
Площадь145 м²
Этаж1 из 5
Отчёт о привлекательности объектаУзнайте, насколько помещение и район подходят для вашего бизнеса
Что входит в отчёт
  • Охват населения
  • Пешеходный трафик
  • Автомобильный трафик
  • Средний бюджет семьи по району
  • Арендные ставки рядом
  • Точки притяжения
  • Конкуренты в радиусе 1 км
  • Рекомендации по выбору места для бизнеса
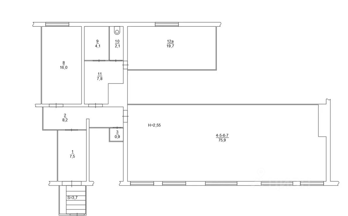
В продаже просторное нежилое коммерческое помещение 145м² на цокольном этаже с металлопластиковыми окнами и вентиляцией в жилом кирпичном доме в центре Ворошиловского района г.Ростова-на-Дону . Статусный адрес- ул.Турмалиновская 79/1 Рядом пр.Нагибина , ул. Ленина, ул. Нансена, ТЦ "РИО", ДК "Роствертол" Высокая проходимость , развитая инфраструктура, парковка во дворе/возле дома, рядом остановки общественного транспорта Объект находится на цокольном этаже с отдельным входом, что обеспечивает легкий доступ и независимость от графика работы жилой части дома. Состояние- стройвариант. Готовый бизнес-бокс. Удобная планировка. Помещение разделено на 3 отдельные комнаты с широкими металлопластиковыми окнами, плюс места общего пользования, что удобно для офисов, кабинетов, склада, магазина шаговой доступности, ПВЗ, хостела, производства, услуг, Все коммуникации подведены: электричество, водоснабжение, отопление, канализация, наличие санузла и вентиляции. В помещении 2 мокрые точки. Естественный свет- окна на цокольном этаже. Коммуникации и технологии: Электричество Водоснабжение и канализация (центральные). Приточно-вытяжная вентиляция Окна на улицу (с обеих сторон помещения) Звоните! Условия обсуждаются. Хороший торг при показе! Один собственник. Полная стоимость в ДКП. #продажа #коммерция #помещение #центр #выгодно Номер объекта по каталогу #202354. Дополнительно оплачивается комиссия с покупателя.
lock

Войдите или зарегистрируйтесь
для просмотра информации

Просматривайте условия сделки и всю информацию об объекте
Сохраняйте фильтры в поиске и не вводите заново
Доступ к избранному с любого устройства
Неограниченное добавление в избранное
Позвоните автору
Вам ответят на все вопросы
Остались вопросы по объявлению?
Позвоните владельцу объявления и уточните необходимую информацию.
  • Инфраструктура
  • Похожие рядом
  • Общая площадь145 м²
Помощь надёжных риелторов
Риелтор партнёр Циан поможет купить или продать любую недвижимость
5 900 000 ₽
78 989 $
67 358
Цена за метр
40 690 ₽
Налог
НДС включен: 1 063 934 ₽
Агентство недвижимости
Документы проверены
На Циан
8 лет
Объектов в работе
более 1000