Мы используем куки-файлы. Соглашение об использовании
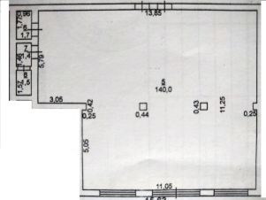
Помещение свободного назначения, 144,6 м²

Сдается помещение свободного назначения, 144,6 м²

Площадь144,6 м²
Этаж1 из 2
ПомещениеСвободно
Отчёт о привлекательности объектаУзнайте, насколько помещение и район подходят для вашего бизнеса
Что входит в отчёт
  • Охват населения
  • Пешеходный трафик
  • Автомобильный трафик
  • Средний бюджет семьи по району
  • Арендные ставки рядом
  • Точки притяжения
  • Конкуренты в радиусе 1 км
  • Рекомендации по выбору места для бизнеса
Просторное помещение свободного назначения по улице М. Горького, 356-е. Первый этаж в БЦ Лидер (напротив Магнита/М. видео). Общая площадь 144.6 кв. м. Отопление - теплый пол. Два кондиционера. Есть туалет и комната для хранения моющего инвентаря. Помещение освободится в мае, сейчас занято магазином "Бюро мебели". Отличный автомобильный трафик.
lock

Войдите или зарегистрируйтесь
для просмотра информации

Просматривайте условия сделки и всю информацию об объекте
Сохраняйте фильтры в поиске и не вводите заново
Доступ к избранному с любого устройства
Неограниченное добавление в избранное
Позвоните автору
Вам ответят на все вопросы
Остались вопросы по объявлению?
Позвоните владельцу объявления и уточните необходимую информацию.
  • Инфраструктура
  • Похожие рядом
  • Тип зданияДеловой центр
  • Общая площадь144,6 м²
Естественная вентиляция
Местное кондиционирование
Центральное отопление
Сигнализация
Помощь надёжных риелторов
Риелтор партнёр Циан поможет купить или продать любую недвижимость
СобственникID 135910488
    90 000 ₽/мес.

    Прямая аренда (от года), доступны арендные каникулы, предоплата за 1 месяц

    1 200 $/мес.
    1 023 /мес.
    Цена за метр
    7 469 ₽ в год
    Налог
    УСН
    Комиссия
    нет
    Коммунальные платежи
    не включены
    Эксплуатационные расходы
    не включены
    СобственникID 135910488