Мы используем куки-файлы. Соглашение об использовании
Площадь460 м²
Этаж1 из 2
Парковка10 мест
Отчёт о привлекательности объектаУзнайте, насколько помещение и район подходят для вашего бизнеса
Что входит в отчёт
  • Охват населения
  • Пешеходный трафик
  • Автомобильный трафик
  • Средний бюджет семьи по району
  • Арендные ставки рядом
  • Точки притяжения
  • Конкуренты в радиусе 1 км
  • Рекомендации по выбору места для бизнеса
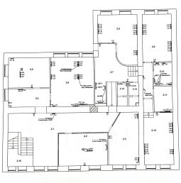
В центре г. Ростова-на-Дону на Б. Садовой предлагается в аренду офисное помещение (бывш. Банк ВТБ) ОПИСАНИЕ Нежилое помещение, расположенное на первом и втором этаже в многоквартирном жилом доме с отдельными входами; Общая площадь: 460,5 м2; Кадастровый номер 61:44:0041103:113; Год постройки: 1917 г; Материал стен: кирпич; Высота потолков: 3,8 м; КОММУНИКАЦИИ Центральные коммуникации в рабочем состоянии: электроснабжение водоснабжение, теплоснабжение, канализация; Установлены системы пожарной сигнализации и дымоудаления, оповещения и управления эвакуации людей, автоматическими установками пожаротушения, внутренним пожарным водопроводом. ПАРКОВКА Открытая городская. Здание расположено на центральной улице г. Ростова-на-Дону, Большой Садовой. Развитая инфраструктура Кировского района города. Рядом расположены Государственный Медицинский Университет, отель Гранд Ростов Хаятт Ридженси, Филармония, Дом братьев Мартын, Старо-Покровский храм, Музыкальный театр, бизнес-центры, рестораны и кафе, продуктовые магазины, банки.
lock

Войдите или зарегистрируйтесь
для просмотра информации

Просматривайте условия сделки и всю информацию об объекте
Сохраняйте фильтры в поиске и не вводите заново
Доступ к избранному с любого устройства
Неограниченное добавление в избранное
Позвоните автору
Вам ответят на все вопросы
Остались вопросы по объявлению?
Позвоните владельцу объявления и уточните необходимую информацию.
  • Инфраструктура
  • Похожие рядом
Помощь надёжных риелторов
Риелтор партнёр Циан поможет купить или продать любую недвижимость
Риелтор
ID 71985971
  • 5 лет 1 месяц на Циане
  • 650 000 ₽/мес.

    Прямая аренда (от года), минимальный срок аренды 12 месяцев, доступны арендные каникулы, обеспечительный платёж 950000 ₽, предоплата за 1 месяц

    8 889 $/мес.
    7 631 /мес.
    Цена за метр
    16 957 ₽ в год
    Налог
    НДС включен: 117 213 ₽
    Комиссия
    50%
    Коммунальные платежи
    не включены
    Эксплуатационные расходы
    не включены
    Риелтор
    ID 71985971