Мы используем куки-файлы. Соглашение об использовании

Идеальный офис, представительство

Площадь500 м²
Этажность2
КлассA
Отчёт о привлекательности объектаУзнайте, насколько помещение и район подходят для вашего бизнеса
Что входит в отчёт
  • Охват населения
  • Пешеходный трафик
  • Автомобильный трафик
  • Средний бюджет семьи по району
  • Арендные ставки рядом
  • Точки притяжения
  • Конкуренты в радиусе 1 км
  • Рекомендации по выбору места для бизнеса
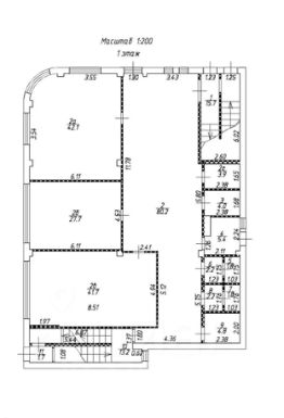
Сдаются 1-й и 2-й этажи (=500 кв.м.) здания с трафиком в Центре города по адресу г. Ростов-на-Дону, переулок Газетный 28/ул. Станиславского Характеристики и преимущества: - помещения расположены на 1-2 этаже трехэтажного здания в активном и деловом Центре города, цокольный этаж не сдается (действующий договор аренды) - высокий трафик - два отдельных входа, - помещения в отличном состоянии, окна обеспечивают естественную освещенность - высота потолков 3м - электрическая мощность 15кВт - все коммуникации, вода холодная/горячая, свой санузел, автономное отопление своя котельная (низкие коммунальные платежи) - помещение оборудовано системой вентиляции и кондиционирования - проведен интернет - пожарная и охранная сигнализация Отлично подойдет под учебный центр, представительство, офис. АН Домиан, оплата комиссии, обеспечительный платеж 100%. НДС не включен.
lock

Войдите или зарегистрируйтесь
для просмотра информации

Просматривайте условия сделки и всю информацию об объекте
Сохраняйте фильтры в поиске и не вводите заново
Доступ к избранному с любого устройства
Неограниченное добавление в избранное
Позвоните автору
Вам ответят на все вопросы
Остались вопросы по объявлению?
Позвоните владельцу объявления и уточните необходимую информацию.
  • Инфраструктура
  • Похожие рядом
Приточная вентиляция
Местное кондиционирование
Автономное отопление
Сигнализация
Помощь надёжных риелторов
Риелтор партнёр Циан поможет купить или продать любую недвижимость
Риелтор
ID 71985971
  • 4 года 11 месяцев на Циане
  • 720 000 ₽/мес.

    Прямая аренда (от года), минимальный срок аренды 12 месяцев, доступны арендные каникулы, обеспечительный платёж 720000 ₽, предоплата за 1 месяц

    9 443 $/мес.
    8 077 /мес.
    Цена за метр
    17 280 ₽ в год
    Налог
    НДС включен: 129 500 ₽
    Комиссия
    50%
    Коммунальные платежи
    не включены
    Эксплуатационные расходы
    не включены
    Риелтор
    ID 71985971