


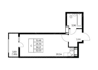
178 000 ₽/м²
Успейте купить квартиру в проекте бизнес-класса "Звезда Столицы 2" выгодно! Акции, которые действуют сейчас: • Скидки до 2 000 000 ₽/месяц (учтено в цене) • Ипотека от 4% на весь срок без удорожания! Вы можете выбрать один из вариантов отделки: Черновая; Предчистовая (white-box); Ремонт под ключ (2 стилевых решения). Новый жилой комплекс бизнес-класса в центре РостованаДону. Звёздная локация от надежного застройщика.Выбирая место для открытий, отдыха или развития, вы можете быть уверены в комфорте поездки: быстрые маршруты на личном авто или такси, большой выбор направлений железнодорожного общественного транспорта. Покупая квартиру в ЖК "Звезда Столицы 2", Вы приобретаете: • Приватная территория • Многоуровневый внутренний двор с озеленением • Детские и спортивные площадки • Гранд-терраса - между первой и второй секцией на крыше • Подземный паркинг • Образовательные и коммерческие сервисы на территории ЖК • Кофейни и рестораны • Спортивная студия • Мини-кинотеатр • Колясочные • Сервис-менеджер • Коворкинг центр • Специальное место для хранения заказов; Круглосуточное видеонаблюдение охватывает общественные пространства и весь периметр двора. Вход на территорию осуществляется через приложение "Умный дом" При покупке НАПРЯМУЮ ОТ ЗАСТРОЙЩИКА получите индивидуальную скидку! Звоните сейчас!







































































































































































