


164 417 ₽/м²
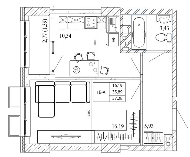
Дом сдан! В продаже последние 7 квартир с террасами. Продается большая евро 3-комнатная квартира 76 м² с террасой в доме бизнес-класса рядом с парком "Плевен" у пр. Стачки. О квартире: • Кухня-гостиная 23 кв. м правильной квадратной формы • 2 изолированные спальни: 15 и 16 кв. м с выходом на террасу из каждой • Терраса 14 кв. м • Прихожая с местом под гардероб • 2 этаж • Премиум-комплектация: немецкие окна и двери, умные счётчики (тепло, вода, свет) в смартфоне, интернет уже проведен • Улучшенная черновая отделка: квартира сдается со стяжкой пола и межкомнатными перегородками, с шумо- и гидроизоляцией О жилом комплексе: • Настоящий бизнес-класс с авторской архитектурой • Квартиры с террасами и потолками до 3,6 метров, панорамные окна • Собственная система фильтрации воды • Всего 4 квартиры на этаже • Подземный паркинг с лифтом прямо к квартире • Консьерж-сервис 24/7 и бесключевой доступ • Закрытая территория с ландшафтным озеленением и круглосуточным видеонаблюдением — 67 камер по периметру Расположение: У проспекта Стачки, парк "Плевен" — через дорогу. Можно дойти пешком до ЮФУ, школ и детсадов. 10 минут на машине до центра. Свяжитесь с нами и выберите свою квартиру. Продается современная квартира в новом жилом комплексе "Таймс" от застройщика СЗ "Феникс" в Западном районе Ростов-на-Дону. Это отличная возможность купить квартиру в развитом районе с продуманной инфраструктурой, зелеными зонами и удобной транспортной доступностью. В ЖК "Таймс" представлены уютные студии, однокомнатные, двухкомнатные и трехкомнатные квартиры с качественной чистовой отделкой, панорамными окнами и функциональными планировками. Для покупателей доступна ипотека, рассрочка от застройщика, а также специальные акции и скидки. Район отличается близостью к школам, детским садам, поликлиникам, магазинам и фитнес-центрам. Во дворе оборудованы детские и спортивные площадки, предусмотрена охраняемая парковка. Если вы ищете, где купить квартиру в Ростове-на-Дону, ЖК "Таймс" — это выгодное и надежное предложение от СЗ "Феникс". Нас могут искать по таким словам: Квартиры в Ростове-на-Дону, новостройки Ростов-на-Дону, купить квартиру в Ростове, жилой комплекс в Ростове, новостройки от застройщика, квартиры в новостройке, студии в Ростове, однокомнатные квартиры, двухкомнатные квартиры, трехкомнатные квартиры, квартиры в Ростове-на-Дону, новостройки Ростов-на-Дону, купить квартиру в Ростове, жилой комплекс в Ростове, новостройки от застройщика, квартиры в новостройке, студии в Ростове, однокомнатные квартиры, двухкомнатные квартиры, трехкомнатные квартиры, ипотека от 6%, ипотека на новостройку, ипотека ВТБ, рассрочка от застройщика, рассрочка без процентов, квартира в ипотеку, ипотека с господдержкой, семейная ипотека, IT-ипотека, военная ипотека, первоначальный взнос, оплата частями, эскроу-счет ВТБ, квартира от 18000 в месяц, сниженные цены, акции от застройщика, скидки на новостройки, прямая продажа от застройщика, готовые квартиры, дом сдан, новостройка с отделкой, стил Продам квартиру на проспекте Стачки в городе Ростов-на-Дону.

















































































































