71 956 ₽/м²
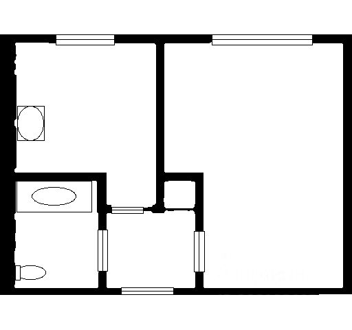
Код объекта: 1963952. Ищете комфортное жильё по выгодной цене? Предлагаем вашему вниманию однокомнатную квартиру в посёлке Красногорняцкий. Квартира расположена на третьем этаже трёхэтажного кирпичного дома, построенного в 2019 году. Здесь вас порадует высота потолков в 2,7 метра и наличие балкона. Окна выходят во двор, а комнаты изолированы, что создаёт дополнительное удобство. Общая площадь квартиры составляет 27,1 кв. м, жилая — 11,4 кв. м, площадь кухни — 5,8 кв. м. Особое внимание заслуживает просторная прихожая, в которой можно оборудовать гардероб. В квартире выполнен ремонт типа white box, что позволит вам воплотить в жизнь свои дизайнерские идеи без дополнительных вложений. На кухне установлена новая газовая печь, в санузле - новая сантехника. Отопление в доме индивидуальное, что позволяет регулировать температуру в квартире по своему усмотрению. Также имеется наземная парковка. Во дворе оборудована детская площадка. Дом расположен в развивающемся микрорайоне, в черте районного центра р.п. Каменоломни. Рядом с домом школа, детский сад, отделение почты, магазины, автобусная остановка. Эта квартира — отличное решение для молодых специалистов, студентов, а также для пар с детьми или без детей. А инвесторы оценят её потенциал с точки зрения ликвидности и возможности роста стоимости. Не упустите шанс стать обладателем этой уютной квартиры! Звоните нам прямо сейчас, чтобы узнать больше и записаться на просмотр. Мы гарантируем безопасную сделку и юридическую поддержку нашим клиентам. Поможем одобрить ипотеку с сниженной ставкой. #квартиравипотеку #горняк #купитьквартиру #квартираподсдачу #вложитьденьги











































































