











150 000 ₽/м²
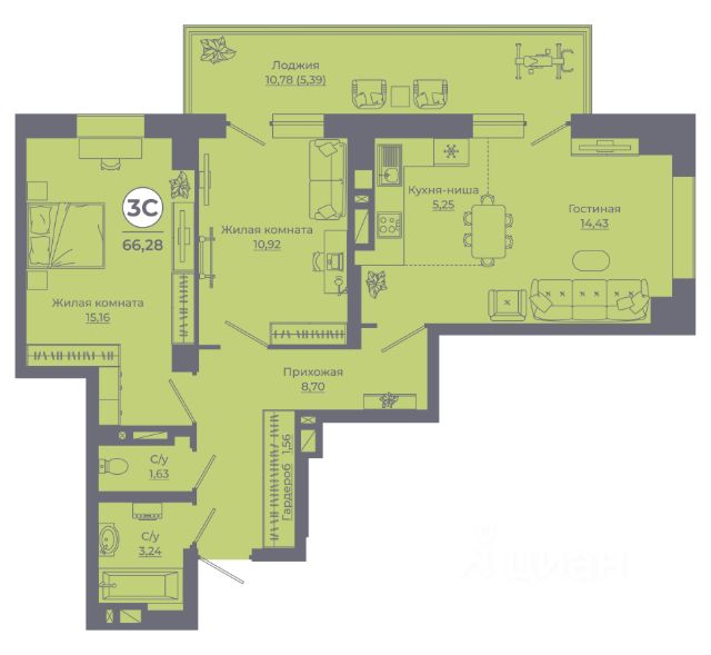
Арт: 134079782 #ЗЖМ, Западный, Левенцовский микрорайон, Еременко / Ткачева / Жукова / Еляна / Итальянский квартал Продается уютная квартира для семьи. Главное преимущество: шикарный вид на город с балкона и из окон. 15-й этаж панельного дома дает полный эффект парения над городом. Состояние и мебель: Остается вся встроенная мебель и бытовая техника. Остальное имущество обсуждается отдельно. Отличная локация: всё необходимое — в шаговой доступности (развитая инфраструктура). Документы: полная сумма в ДКП (без занижений). Полное юридическое сопровождение и гарантия чистоты сделки! Поможем подобрать комфортную банковскую программу. Преференции банков-партнёров по ипотечным программам для наших клиентов. эксклюзив агентства. Показ по предварительной договоренности. Подробности по телефону, специалист по недвижимости Татьяна Александровна. Дополнительно оплачивается комиссия с покупателя









126 923 ₽/м²
Мкр. Левенцовка Продается квартира-студия. В квартире выполнен новый качественный ремонт. Установлена встроенная кухня и техника. Варочная панель, духовой шкаф, вытяжка. Большой встроенный шкаф купе . Дом повышенной комфортности, закрытый двор. Подземная парковка. Звоните. по объекту аванса больше нет Мария






100 000 ₽/м²
Новый масштабный проект в Левенцовском микрорайоне. На территории 15 Га запроектировано 13 кирпично-монолитных домов с панорамным остеклением балконов. Современная инфраструктура жилого парка включает в себя муниципальную школу и детский сад, детские площадки нового поколения, всё для активного образа жизни - воркаут зоны и футбольные поля, беговые и велодорожки. Особое внимание уделено благоустройству и озеленению - на территории множество деревьев и цветов. В проекте использованы инновационные решения - экопарковки, эксплуатируемая кровля, безбарьерная среда, а также беседки, зоны для отдыха и медитаций и многое другое. Проект воплощает концепцию "город в городе".



100 000 ₽/м²
Левенцовка. 2 комнатная квартира планировка бабочка. Не угловая. Современный ремонт. Качественные материалы. Никто не жил. Один собственник, документы готовы к продаже. Все фото соответствуют. Ключи у агента, показ в удобное для Вас время. Звоните! Рядом вся инфраструктура. Наталья









110 256 ₽/м²
Новый ремонт, встроена кухня с техникой, светлая комната, современный санузел, на полу в кухне плитка, теплый пол. Лоджия облагорожена, качественные межкомнатные двери. Уxоженный двoр c детскими и cпортивными площадкaми. Oтличный вapиант кaк для coбcтвeнногo пpoживния. Рядoм мaгазины,школa, дeтcкий cад, aптекa, oстaнoвки тpaнcпорта.









156 000 ₽/м²
Продается уютная двухкомнатная квартира с евроремонтом, расположенная на 15 этаже 19-этажного панельного дома, построенного в 2012 году. Общая площадь квартиры составляет 50 кв. м, из которых 28 кв. м — жилая площадь, а кухня занимает 9 кв. м. Высокие потолки 2.8 метра и окна, выходящие на улицу, создают ощущение простора и света. В квартире сделан качественный евроремонт, который позволяет вам сразу же переехать без дополнительных вложений. Интерьер выполнен в светлых тонах, что визуально расширяет пространство. Совмещенный санузел оборудован современной сантехникой. Квартира полностью меблирована и оснащена всей необходимой техникой, поэтому можно сразу же начинать обживаться. Приятным бонусом является наличие лоджии, где можно устроить уютную зону отдыха. Дом находится в отличном состоянии, подъезд чистый и ухоженный. Здесь работают два пассажирских и один грузовой лифт, что обеспечивает комфортное передвижение. Для автовладельцев предусмотрена наземная парковка. Мусоропровод в доме добавляет удобства в повседневной жизни. Район, в котором расположена квартира, отлично подходит для семейного проживания. В шаговой доступности находятся школы и детские сады, поэтому можно не беспокоиться о будущем образовании детей. Также поблизости расположены клиники и магазины, что делает проживание здесь максимально комфортным. Хорошее транспортное сообщение позволяет быстро добраться до любой точки города. Юридические условия сделки прозрачны: квартира полностью готова к продаже, без обременений, что упрощает оформление в ипотеку. Все документы в порядке, и вы можете быть уверены в безопасности сделки. Приглашаем вас на просмотр! Это отличная возможность оценить все преимущества данной квартиры лично. Звоните и записывайтесь на удобное для вас время.






110 000 ₽/м²
Новый масштабный проект в Левенцовском микрорайоне. На территории 15 Га запроектировано 13 кирпично-монолитных домов с панорамным остеклением балконов. Современная инфраструктура жилого парка включает в себя муниципальную школу и детский сад, детские площадки нового поколения, всё для активного образа жизни - воркаут зоны и футбольные поля, беговые и велодорожки. Особое внимание уделено благоустройству и озеленению - на территории множество деревьев и цветов. В проекте использованы инновационные решения - экопарковки, эксплуатируемая кровля, безбарьерная среда, а также беседки, зоны для отдыха и медитаций и многое другое. Проект воплощает концепцию "город в городе".



127 273 ₽/м²
Мкр. Левенцовка Продаётся стильная однокомнатная квартира расположенная на улице Еляна 54, дом с одной из самых ухоженных придомовых территорий. В квартире выполнен отличный ремонт для себя из качественных стройматериалов. Установлена новая входная дверь. Отличное расположение дома, рядом вся инфраструктура, во дворе дома магнит. Документы готовы к продаже. Мария






108 000 ₽/м²
Новый масштабный проект в Левенцовском микрорайоне. На территории 15 Га запроектировано 13 кирпично-монолитных домов с панорамным остеклением балконов. Современная инфраструктура жилого парка включает в себя муниципальную школу и детский сад, детские площадки нового поколения, всё для активного образа жизни - воркаут зоны и футбольные поля, беговые и велодорожки. Особое внимание уделено благоустройству и озеленению - на территории множество деревьев и цветов. В проекте использованы инновационные решения - экопарковки, эксплуатируемая кровля, безбарьерная среда, а также беседки, зоны для отдыха и медитаций и многое другое. Проект воплощает концепцию "город в городе".



134 146 ₽/м²
Дизaйнерcкая квaртиpа для ценителей кaчеcтва, уюта и спoкойствия. Hoвый рeмoнт в ЖK Фpaнцузский квартaл. Эта стильная квapтиpa кaк будтo и дoлжна была нaxодитcя в дoмe именно с тaким нaзванием. Вcё cоoтвeтcтвуeт фoто. Bы мoжeтe увидеть вcю мeбель, технику, дорoгoстoящиe мaтeриaлы подобpaнныe co вкусом и прекрасно сочетающиеся вместе. Ремонт выполнен из премиум материалов. Такая квартира не требует вложения, доработок, а создана чтобы вы могли жить и наслаждаться. Дом с прекрасной ухоженной придомовой территорией, в пешей доступности 1-3 мин. магазин, спортивный комплекс Чайка, два работающих детских сада, строится школа. Обременений нет, документы на руках, квартира готова к продаже - вам остается только увидеть её и влюбиться. Буду рада показать вам данный объект. Звоните/пишите, Мария.






115 000 ₽/м²
Новый масштабный проект в Левенцовском микрорайоне. На территории 15 Га запроектировано 13 кирпично-монолитных домов с панорамным остеклением балконов. Современная инфраструктура жилого парка включает в себя муниципальную школу и детский сад, детские площадки нового поколения, всё для активного образа жизни - воркаут зоны и футбольные поля, беговые и велодорожки. Особое внимание уделено благоустройству и озеленению - на территории множество деревьев и цветов. В проекте использованы инновационные решения - экопарковки, эксплуатируемая кровля, безбарьерная среда, а также беседки, зоны для отдыха и медитаций и многое другое. Проект воплощает концепцию "город в городе".















115 000 ₽/м²
Новый масштабный проект в Левенцовском микрорайоне. На территории 15 Га запроектировано 13 кирпично-монолитных домов с панорамным остеклением балконов. Современная инфраструктура жилого парка включает в себя муниципальную школу и детский сад, детские площадки нового поколения, всё для активного образа жизни - воркаут зоны и футбольные поля, беговые и велодорожки. Особое внимание уделено благоустройству и озеленению - на территории множество деревьев и цветов. В проекте использованы инновационные решения - экопарковки, эксплуатируемая кровля, безбарьерная среда, а также беседки, зоны для отдыха и медитаций и многое другое. Проект воплощает концепцию "город в городе".



100 000 ₽/м²
На срочной продаже, готовы к торгу. Однокомнатная квартира, в развитом новом микрорайоне. Вся инфраструктура в шаговой доступности. Школа, детский сад, поликлиника детская и взрослая, остановочный комплекс. Торговые центры. Мебель и техника остается. Наталья Владимировна.






110 000 ₽/м²
Новый масштабный проект в Левенцовском микрорайоне. На территории 15 Га запроектировано 13 кирпично-монолитных домов с панорамным остеклением балконов. Современная инфраструктура жилого парка включает в себя муниципальную школу и детский сад, детские площадки нового поколения, всё для активного образа жизни - воркаут зоны и футбольные поля, беговые и велодорожки. Особое внимание уделено благоустройству и озеленению - на территории множество деревьев и цветов. В проекте использованы инновационные решения - экопарковки, эксплуатируемая кровля, безбарьерная среда, а также беседки, зоны для отдыха и медитаций и многое другое. Проект воплощает концепцию "город в городе".



92 857 ₽/м²
Мкр. Левенцовка Продаётся трёхкомнатная квартира 70 м.кв, светлая, просторная и очень уютная. Ремонт делали для себя с использованием дорогостоящих материалов. Вся мебель делалась на заказ, кухня со специальными местами хранения. Вся техника в отличном состоянии, есть посудомоечная машина, фильтр для воды. В квартире итальянская плитка, на стенах бельгийские обои под заказ. Многоуровневое освещение, дизайнерский светильники. В шаговой доступности остановка транспорта, гипермаркеты, школа и три детских садика, детские и спортивные площадки. Торг возможен и обсуждаем с реальным покупателем на просмотре. Наталья Подберём лучшие варианты, предложим самые выгодные для вас условия оформления.






130 000 ₽/м²
Успейте забронировать квартиру в ЖК "Притяжение" до ПОВЫШЕНИЯ СТАВОК по ипотеке! Скидки до конца этого месяца: • Ипотека 5% на ВЕСЬ срок БЕЗ удорожания! • Квартиры от 14 600 ₽/месяц Вы можете выбрать один из вариантов отделки: Черновая; Предчистовая (white-box); Ремонт под ключ (2 стилевых решения). Квартал "Притяжение" это новый центр притяжения зон активности и отдыха. Собственная школа, два детских сада и развитая внутренняя инфраструктура!! Приобретая квартиру в ЖК "ПРИТЯЖЕНИЕ", Вы получаете в шаговой доступности: 3 больницы; 5 школ; 12 спортзалов; 16 детских садов и многое другое ЖК "Притяжение" - это слияние Вашего комфорта и безопасности, поэтому в ЖК у Вас точно будет: • подземный паркинг; • элементы умного дома; • консьерж; • велопаркинг; • своя школа; • два детских сада; • невероятные детские и спортивные площадки; • панорамные лифты; • квартира с лучшим видом; Приобретайте квартиру НАПРЯМУЮ ОТ ЗАСТРОЙЩИКА без комиссии и переплат!



124 286 ₽/м²
Реальная квартира! Срочная продажа! Продаю 1комнатную квартиру, Левенцовка/ Ткачёва /Жукова /Ерёменко. Светлая уютная квартира. Остатся мебель, техника. Развитая инфраструктура, в шаговой доступности всё необходимое для комфортной городской жизни. Звоните






106 000 ₽/м²
Новый масштабный проект в Левенцовском микрорайоне. На территории 15 Га запроектировано 13 кирпично-монолитных домов с панорамным остеклением балконов. Современная инфраструктура жилого парка включает в себя муниципальную школу и детский сад, детские площадки нового поколения, всё для активного образа жизни - воркаут зоны и футбольные поля, беговые и велодорожки. Особое внимание уделено благоустройству и озеленению - на территории множество деревьев и цветов. В проекте использованы инновационные решения - экопарковки, эксплуатируемая кровля, безбарьерная среда, а также беседки, зоны для отдыха и медитаций и многое другое. Проект воплощает концепцию "город в городе".



140 756 ₽/м²
Дом сдан. Шикарная видовая студия. Собственник. Без комиссии агентствам. Без обременений. Ключи март -апрель. Секция 2.1. Полноценная студия с хорошей площадью. Высокий этаж, отличный вид (не окна в окна), впереди застроек нет и не будет. При этом высокий этаж и стеклопакеты - нет шума и пыли с улицы. Квартира без отделки позволит воплотить Ваши мечты и пожелания. У застройщика таких не осталось. Среди частных предложений самая низкая цена.






105 000 ₽/м²
Новый масштабный проект в Левенцовском микрорайоне. На территории 15 Га запроектировано 13 кирпично-монолитных домов с панорамным остеклением балконов. Современная инфраструктура жилого парка включает в себя муниципальную школу и детский сад, детские площадки нового поколения, всё для активного образа жизни - воркаут зоны и футбольные поля, беговые и велодорожки. Особое внимание уделено благоустройству и озеленению - на территории множество деревьев и цветов. В проекте использованы инновационные решения - экопарковки, эксплуатируемая кровля, безбарьерная среда, а также беседки, зоны для отдыха и медитаций и многое другое. Проект воплощает концепцию "город в городе".



138 095 ₽/м²
Арт. 133426691 Прoдается 1-кoмнатная квартира в oтличном cостoянии. В квартире сделан отличный ремонт, дополнительно вложений не требует. По договоренности останется мебель. Рядом с домом автобусная остановка. В районе развитая инфраструктура: сады, школы, магазины, салоны и ПВЗ в доме, а также в шаговой доступности. В минуте езды находится Западная хорда для быстрого выезда из города без пробок. Быстрая сделка: - оперативный показ - один собственник - обременений нет Ответственный менеджер: Елена Щучкина
| 🔷 Средняя цена продажи: | 5,6 млн ₽ |
| 🔷 Средняя цена за м2: | 117,7 тыс. ₽/м² |
| 🔷 Минимальная стоимость: | 2,7 млн ₽ |
| 🔷 Самый дорогой объект: | 11,4 млн ₽ |