114 286 ₽/м²
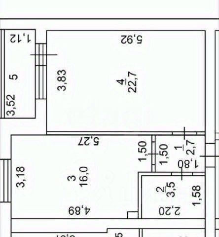
Код объекта: 2060453. Продается шикарная квартира в новом доме 2020 года постройки. в экологическо чистом, стремительно развивающемся районе.Кирпичные Дома в ЖК Южный парк отличаются своим качеством, прочностью и современной комфортной европланировкой. В квартире индивидуальное отопление, двухконтурный котел BAXI, теплый пол на кухне, в коридоре и санузле. Сделан качественный дорогостоящий ремонт, проведена шумоизоляция стен и потолка, фото ремонта прилагаются. Комнаты в квартире очень просторные, изолированные, оснащенные сплит системой, лоджия утепленная, большой коридор и просторная кухня со встроенной современной мебелью и техникой, встроенный эл.духовой шкаф, микроволновая печь, варочная панель, вытяжка при продаже остаются, остальное обсуждается. Во дворе имеются парковочные места, большая детская и спортивная площадка, много зелени и цветов. продажа в связи с переездом в другой город. Подходят все виды расчета.









































