


128 015 ₽/м²
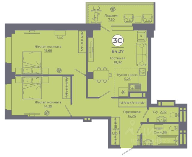
Продаётся 3-комнатная квартира в строящемся доме (Поз. 1-1), срок сдачи: IV-кв. 2025, общей площадью 56.79 кв.м., на 23 этаже. Новый жилой комплекс "Малина парк" от группы компаний "СК10" расположен по адресу: г. Ростов-на-Дону, по ул. Малиновского.














































































































































