


105 000 ₽/м²
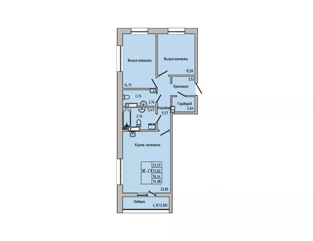
"Жилой комплекс "Мечта" - это современный жилой комплекс, бережно вписанный в экосистему природного ландшафта берега реки Койсуг в городе Батайск на улице 1-й Пятилетки. Находясь в 10-ти минутах езды от центра одного из крупнейших мегаполисов юга России - города Ростов-на-Дону, жилой комплекс сочетает в себе преимущества загородной жизни и городского комфорта. Архитектурная композиция жилого комплекса состоит из шести 24-этажных многоквартирных домов. На первых этажах зданий располагаются помещения общественного назначения. В здания химеются подвальный и технический этажи. Существенным преимуществом является также то, что в зданиях имеются собственные автоматизированные блочные котельные. На территории жилого комплекса также располагается здание 5-этажной автостоянки, вместимостью 465 мест, со встроенным помещением мойки автомобилей.


































































































