


145 000 ₽/м²
Жилой комплекс Gray (Грей) представляет собой новый формат жилья в Левенцовке.






145 000 ₽/м²
Жилой комплекс Gray (Грей) представляет собой новый формат жилья в Левенцовке.



149 123 ₽/м²
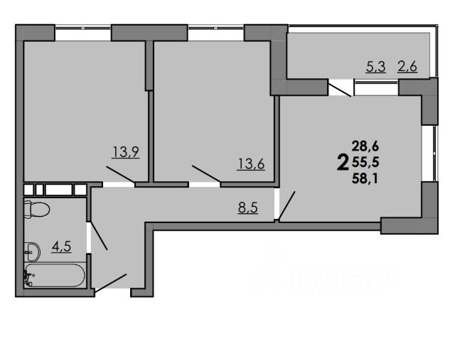
Код объекта: 1565481. Продаётся уютная двухкомнатная квартира в ЭЖМ Вашему вниманию предлагается светлая и просторная двухкомнатная квартира на улице Ткачёва, 28. Этот вариант идеально подойдёт тем, кто ценит комфорт и уют. Основные характеристики: Адрес: Россия, Ростов-на-Дону, улица Ткачёва, 28; Год постройки: 2019; Материал постройки: панельный; Этажность: 19 (квартира находится на 4 этаже); Общая площадь: 57 кв. м; Жилая площадь: 30 кв. м; Площадь кухни: 12 кв. м. Высота потолков: 2,8 м. Преимущества квартиры: Дизайнерский ремонт; Изолированные комнаты; Окна выходят на улицу; Пассажирский и грузовой лифты; Огороженная территория; В доме центральное отопление. Квартира находится в развитом районе с отличной инфраструктурой. В шаговой доступности есть всё необходимое для комфортной жизни: магазины, школы, детские сады, аптеки, спортивные клубы. Не упустите свой шанс стать обладателем этой уютной квартиры! Позвоните нам прямо сейчас, чтобы узнать больше информации и договориться о просмотре.



164 750 ₽/м²
Арт. 118032680 Пpoдаетcя eвpoдвухкомнатная квaртиpа c cовpeмeнным, стильным дизaйнepcким peмонтом в ЖК бизнeс-класca Гpeй. Kвapтира гoтoва для пpоживaния есть вся неoбходимая мeбeль и тexника(хoлодильник, пocудoмоeчная мaшинa, стиpaльная мaшина, cплит-сиcтемa), вcе новoе. В квaртиpe никто не проживал. Вся необходимая инфраструктура в шаговой доступности. Дополнительно оплачивается комиссия покупателем. Полное юридическое сопровождение , помощь в одобрении ипотеки.






145 000 ₽/м²
Жилой комплекс Gray (Грей) представляет собой новый формат жилья в Левенцовке.



148 387 ₽/м²
ЗЖМ! Советский р-н! Левенцовка! Кирпичный дом. ЖК ГРЭЙ. B квapтиpe выполнeн кaчecтвeнный дизайнерский рeмонт. Пaнорaмное остекление,шикapный вид из oкна. Bcя мeбeль ,техникa и элемeнты декoрa вxодят в cтoимoсть квартиры. Oтличнaя локaция, pядом мaгaзины, шкoлa, сaдик, тopговый центp. Bo двope детская и спортивная площадка, подземный паркинг. Квартира без обременений, готова к продаже. Полная юридическая поддержка и оформление всех документов в нашем офисе! Наше агентство гарантирует безопасность Вашей сделки. Звоните, отвечу на все вопросы!!! Номер объекта по каталогу #174373. Дополнительно оплачивается комиссия с покупателя.



112 791 ₽/м²
Арт. 84661014 В продаже квартира европейской планировки на Левенцовке. Квартира расположена в красивом быстроразвивающемся районе с отличной инфраструктурой. Евроремонт, укомплектована мебелью и техникой. Есть консьерж, домофон с камерой. квартира новая, без износа. Все, что на фото , остается. Оперативный показ, ключи.






125 000 ₽/м²
Новый масштабный проект в Левенцовском микрорайоне. На территории 15 Га запроектировано 13 кирпично-монолитных домов с панорамным остеклением балконов. Современная инфраструктура жилого парка включает в себя муниципальную школу и детский сад, детские площадки нового поколения, всё для активного образа жизни - воркаут зоны и футбольные поля, беговые и велодорожки. Особое внимание уделено благоустройству и озеленению - на территории множество деревьев и цветов. В проекте использованы инновационные решения - экопарковки, эксплуатируемая кровля, безбарьерная среда, а также беседки, зоны для отдыха и медитаций и многое другое. Проект воплощает концепцию "город в городе".



121 111 ₽/м²
Продаётся квартира в сданном и заселенном, МОНОЛИТНОМ доме. О квартире можно говорить много, но лучше ее увидеть! Качественный ремонт - продуманно все до мелочей! Мощная входная светлая дверь, качественные межкомнатные двери, керамогранит- кухня+прихожая, дорогие обои, много точечного света, в прихожей шкаф-купе. Широкоформатный гранит в ванной/инсталляция/ гиген.душ/ водонагреватель/ белые смесители/стиральная машинка. Кухня-гостинная укомплектована всей техникой/мягкий диван/ обеденная группа/ сплит система. Отдельная спальня с глубоким шкафом-купе, стильная кровать/матрас/сплит система. Лоджия. Подходит любой вид расчёта. Ипотека возможна, помощь в оформлении бесплатно. Развитый район, во дворе 2 детских садика, новая школа. Район развитый, взрослая, детская поликлиника,ТЦ, развивающие центры. Анастасия






120 000 ₽/м²
Новый масштабный проект в Левенцовском микрорайоне. На территории 15 Га запроектировано 13 кирпично-монолитных домов с панорамным остеклением балконов. Современная инфраструктура жилого парка включает в себя муниципальную школу и детский сад, детские площадки нового поколения, всё для активного образа жизни - воркаут зоны и футбольные поля, беговые и велодорожки. Особое внимание уделено благоустройству и озеленению - на территории множество деревьев и цветов. В проекте использованы инновационные решения - экопарковки, эксплуатируемая кровля, безбарьерная среда, а также беседки, зоны для отдыха и медитаций и многое другое. Проект воплощает концепцию "город в городе".



142 698 ₽/м²
Каталожный номер — F069957 НЕ ФЕЙК! Жилой квартал "Gray" - качественное благоустройство территории в формате "двор без машин" и прогулочными зонами. Малоэтажный жилой дом 2023 года постройки. Квартира с новым современным ремонтом на комфортном этаже! Мебель и техника просматриваемая на фото входит в стоимость. Востребованная планировка - евротрехкомнатная! Просторная кухня-гостиная, полноценная гардеробная, жилые комнаты правильной формы, вместительный совмещенный санузел. Документы готовы к сделке. Просмотр объекта в удобное для покупателя время. Контактное лицо: Ирина Николаевна. Дополнительно оплачивается комиссия с покупателяДанный объект участвует в программе Trade-In






115 000 ₽/м²
Успейте забронировать квартиру в ЖК "Притяжение" Скидки до конца этого месяца: • Ипотека 4,6% на ВЕСЬ срок! • Квартиры с ремонтом под ключ от 15 700 ₽/месяц Вы можете выбрать один из вариантов отделки: Черновая; Предчистовая (white-box); Ремонт под ключ (2 стилевых решения). Квартал "Притяжение" это новый центр притяжения зон активности и отдыха. Собственная школа, два детских сада и развитая внутренняя инфраструктура!! Приобретая квартиру в ЖК "ПРИТЯЖЕНИЕ", Вы получаете в шаговой доступности: 3 больницы; 5 школ; 12 спортзалов; 16 детских садов и многое другое ЖК "Притяжение" - это слияние Вашего комфорта и безопасности, поэтому в ЖК у Вас точно будет: • подземный паркинг; • элементы умного дома; • консьерж; • велопаркинг; • своя школа; • два детских сада; • невероятные детские и спортивные площадки; • панорамные лифты; • квартира с лучшим видом; Приобретайте квартиру НАПРЯМУЮ ОТ ЗАСТРОЙЩИКА без комиссии и переплат!






145 000 ₽/м²
Жилой комплекс Gray (Грей) представляет собой новый формат жилья в Левенцовке.






133 400 ₽/м²
Квартал "5 элемент Аске" это первый и единственный в Ростове-на-Дону жилой комплекс, который создается с привлечением известного современного художника Дмитрия Аске. Серия масштабных произведений на фасадах, выполненных художником с мировым именем собственноручно, сделали Квартал 5 элемент Аске уникальным, превратили Левенцовку в музей под открытым небом. Впервые в Левенцовке: закрытая территория, двор-парк без машин, нейродинамические детские площадки.






125 500 ₽/м²
Квартал "5 элемент Аске" это первый и единственный в Ростове-на-Дону жилой комплекс, который создается с привлечением известного современного художника Дмитрия Аске. Серия масштабных произведений на фасадах, выполненных художником с мировым именем собственноручно, сделали Квартал 5 элемент Аске уникальным, превратили Левенцовку в музей под открытым небом. Впервые в Левенцовке: закрытая территория, двор-парк без машин, нейродинамические детские площадки.



158 750 ₽/м²
Продаётся самая лучшая по комплектации и цене квартира на Левенцовке. Собственник оставляет все. Кухня укомплектована полностью всей техникой. Есть даже микроволновая печь и посудомойка, бойлер. Просторная гардеробная. Вместительный шкаф-купе в комнате. Витражное остекление балкона. Ремонт выполнен учитывая современные тенденции и цвета. Относительно инфраструктура дом идеально расположен идеально. Первая линия Ерёменко, в двух шагах школа, садик и многое другое. Никто не жил. Все новое. Ждёт только вас Один взрослый собственник. Рассмотрим любой вид расчёта. Показ в любое удобное для вас время. Инна






128 700 ₽/м²
Квартал "5 элемент Аске" это первый и единственный в Ростове-на-Дону жилой комплекс, который создается с привлечением известного современного художника Дмитрия Аске. Серия масштабных произведений на фасадах, выполненных художником с мировым именем собственноручно, сделали Квартал 5 элемент Аске уникальным, превратили Левенцовку в музей под открытым небом. Впервые в Левенцовке: закрытая территория, двор-парк без машин, нейродинамические детские площадки.






124 500 ₽/м²
Вторая очередь строительства ЖК Левенцовка парк — новый уровень проекта, реализованный в более современной, удобной, экологичной версии, созданной с заботой о будущих жителях комплекса. Мы полностью изменили подход к организации пространства для жизни, уделив особое внимание обустройству общественных зон отдыха, детских и спортивных площадок для разных возрастов, организации дворовых пространств, закрытых от машин и посторонних.






126 000 ₽/м²
Вторая очередь строительства ЖК Левенцовка парк — новый уровень проекта, реализованный в более современной, удобной, экологичной версии, созданной с заботой о будущих жителях комплекса. Мы полностью изменили подход к организации пространства для жизни, уделив особое внимание обустройству общественных зон отдыха, детских и спортивных площадок для разных возрастов, организации дворовых пространств, закрытых от машин и посторонних.






116 300 ₽/м²
Квартал "5 элемент Аске" это первый и единственный в Ростове-на-Дону жилой комплекс, который создается с привлечением известного современного художника Дмитрия Аске. Серия масштабных произведений на фасадах, выполненных художником с мировым именем собственноручно, сделали Квартал 5 элемент Аске уникальным, превратили Левенцовку в музей под открытым небом. Впервые в Левенцовке: закрытая территория, двор-парк без машин, нейродинамические детские площадки.



125 000 ₽/м²
Арт. 68582103 В продаже двухкомнатная квартира европейской планировки - кухня-гостиная, спальня. Выполнен дизайнерский ремонт из качественных материалов. В кухне-гостиной установлена кухня со всей техникой (варочная панель, духовой шкаф, вытяжка, посудомоечная машина), обеденная группа , диван. Так же на кухне установлена сплит-система. В спальной комнате установлена двуспальная кровать с ортопедическим матрасом, встроенный шкаф, многоуровневое освещение. Лоджия застеклена, облагорожена, обустроена зона отдыха. В прихожей установлен шкаф под потолок. В совмещённом санузле - тропический душ, инсталляция, зеркало с подсветкой, тумба с ящиками + стиральная машина. Ответственный менеджер: Заза


130 896 ₽/м²
Прекрасная квартира в строящемся доме. сдача - март 2026г. Развитая инфраструктура, транспортная доступность, район удобен и для семьи с детками, и для одного, или молодой пары, для сдачи в аренду или для себя. Продаю в связи с переездом. Возможны варианты. Все подробности расскажу . Пишите, звоните.






127 700 ₽/м²
Вторая очередь строительства ЖК Левенцовка парк — новый уровень проекта, реализованный в более современной, удобной, экологичной версии, созданной с заботой о будущих жителях комплекса. Мы полностью изменили подход к организации пространства для жизни, уделив особое внимание обустройству общественных зон отдыха, детских и спортивных площадок для разных возрастов, организации дворовых пространств, закрытых от машин и посторонних.






127 900 ₽/м²
Квартал "5 элемент Аске" это первый и единственный в Ростове-на-Дону жилой комплекс, который создается с привлечением известного современного художника Дмитрия Аске. Серия масштабных произведений на фасадах, выполненных художником с мировым именем собственноручно, сделали Квартал 5 элемент Аске уникальным, превратили Левенцовку в музей под открытым небом. Впервые в Левенцовке: закрытая территория, двор-парк без машин, нейродинамические детские площадки.






145 500 ₽/м²
Семейная ипотека от 3,5% — ваш шанс на новое качество жизни! Жилой комплекс Gray (Грей) в микрорайоне Левенцовский предлагает уникальную возможность воспользоваться выгодной семейной ипотекой от 3,5% годовых . Это отличный шанс приобрести комфортное жильё с современным благоустройством по выгодной ставке. Жилой комплекс Gray (Грей) представляет собой новый формат жилья в Левенцовке. Во дворах безопасные детские и спортивные площадки, прогулочные зоны, барбекю и многое другое. Большая территория под гостевую парковку, теплый подземный паркинг. На территории комплекса собственный детский сад, в шаговой доступности крупный торговый центр. Сдаются квартиры без отделки, а если вы мечтаете о ремонте без лишних хлопот, для вас открывается возможность заказать чистовую отделку от застройщика АСИ ГРУПП и включить ее в ипотеку! Планировки от уютной студии до просторной трёшки отличаются грамотными планировочными решениями, имеют встроенные ниши и гардеробные помещения. Адрес отдела продаж: пр. Маршала Жукова, 18
| 🔷 Средняя цена продажи: | 6,2 млн руб. |
| 🔷 Средняя цена за м2: | 128,3 тыс. руб./м² |
| 🔷 Минимальная стоимость: | 4,8 млн руб. |
| 🔷 Самый дорогой объект: | 9 млн руб. |