150 000 ₽/м²
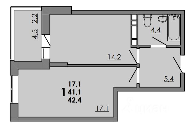
Продаётся 1-комнатная квартира в сданном доме (Маршала Жукова, 18/1 (Дом 11-2, бс 1-3)), срок сдачи: III-кв. 2025, общей площадью 32.3 кв.м., на 13 этаже. ЖК Gray (Грэй) - это новый формат жилого комплекса для Левенцовского района. Основная идея ЖК Gray заключается в создании атмосферы благополучия и счастья для ценителей концепции комфортной жизни. Эта атмосфера достигается комплексом решений в проектировании и благоустройстве ЖК Gray.ЖК Gray представлен шестью 9-10-этажными монолитно-кирпичными домами, высотность которых обеспечивает комфортные условия жизни, исключая проблему перенаселенности, а подземный и гостевой паркинги позволяют без проблем разместить авто. Расположенный в самом начале Левенцовки, ЖК Gray отлично обеспечен внешней инфраструктурой, в шаговой доступности: детский сад, поликлиника и ТЦ Золотой Вавилон. Внутреннее благоустройство комплекса продумано до мелочей, и создает все условия для жизни в удовольствие. Закрытый двор обеспечивает безопасность пребывания на территории комплекса. Современные спортивные и детские площадки гармонично дополняют архитектурный ансамбль комплекса и порадуют жильцов своей функциональностью.




















































































